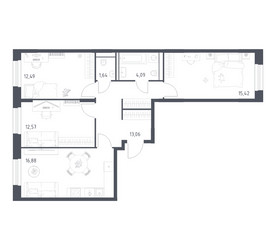
3-Комнатная квартира, 76.15 м², ID 702948
Обновлено Вчера, 16:07
29 649 508 ₽
389 357 ₽ / м2
- Срок сдачи
- II квартал 2026
- Застройщик
- нет данных
- Общая площадь
- 76.15 м2
- Жилая площадь
- 40.48 м2
- Площадь кухни
- 76.15 м2
- Этаж
- 2 из 24
- Отделка
- Чистовая
- ID
- 702948
Описание
Трехкомнатная квартира, 76.15 м2 в ЖК Квартал Строгино от
Продается трехкомнатная квартира в новостройке ЖК Квартал Строгино стоимостью 29 649 508 рублей, по адресу Красногорск, Красногорский б-р. Компания застройщик Группа "Самолет". Квартира сдается в II квартале 2026 года с чистовой отделкой, в 10 минутах на машине от станции метро Строгино. Общая площадь квартиры - 76.15 м². Этаж 2 из 24. ID квартиры на СтройкиРУ 702948, скажите его когда будете звонить.
Подробнее о ЖК Квартал Строгино
Особенности
Ход строительства
Документация
- Проектная декларация № 50-003795, корпус 2 06.06.2023719.61 кб, pdf
- Проект договора участия в долевом строительстве, корпус 2 06.06.2023279.13 кб, pdf
- Извещение о начале строительства, корпус 2 01.06.202361.66 кб, pdf
- Схема планировочной организации земельного участка, корпус 2 13.05.202312.87 мб, pdf
- Градостроительный план земельного участка, корпус 2 13.05.20232.65 мб, pdf
- Разрешение на строительство RU50-20-23857-2023, корпус 2 28.04.2023110.96 кб, pdf
- Экспертиза проектной документации, корпус 2 26.04.20231.26 мб, pdf
- Проект договора участия в долевом строительстве, корпус 1 06.06.2023279.13 кб, pdf
- Проектная декларация № 50-003794, корпус 1 06.06.2023275.00 кб, pdf
- Извещение о начале строительства, корпус 1 01.06.2023123.02 кб, pdf
- Градостроительный план земельного участка, корпус 1 02.05.20232.28 мб, pdf
- Схема планировочной организации земельного участка, корпус 1 02.05.202321.53 мб, pdf
- Разрешение на строительство RU50-20-23782-2023, корпус 1 20.04.2023162.86 кб, pdf
- Экспертиза проектной документации, корпус 1 11.04.20231.22 мб, pdf

























