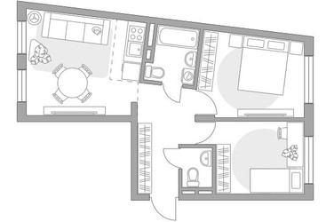
3-Комнатная квартира, 54.78 м², ID 692291
Обновлено Вчера, 20:03
10 241 786 ₽
186 962 ₽ / м2
- Срок сдачи
- III квартал 2027
- Застройщик
- нет данных
- Общая площадь
- 54.78 м2
- Жилая площадь
- 38.13 м2
- Площадь кухни
- 54.78 м2
- Этаж
- 4 из 6
- Корпус
- 10
- Отделка
- Черновая
- ID
- 692291
Описание
Трехкомнатная квартира, 54.78 м2 в ЖК Аникеевский от
Продается трехкомнатная квартира в новостройке ЖК Аникеевский стоимостью 10 241 786 рублей, по адресу Красногорск, ул Сергея Жадобкина. Компания застройщик Гранель. Квартира сдается в II квартале 2028 года с черновой отделкой, в 20 минутах на машине от станции метро Строгино. Общая площадь квартиры - 54.78 м². Этаж 4 из 14. ID квартиры на СтройкиРУ 692291, скажите его когда будете звонить.
Подробнее о ЖК Аникеевский
Особенности
Ход строительства
Документация
- Проектная декларация № 50-003698, корпус 26 05.06.2023725.89 кб, pdf
- Проект договора участия в долевом строительстве, корпус 26 31.05.2023320.81 кб, pdf
- Извещение о начале строительства, корпус 26 31.03.2023286.15 кб, pdf
- Градостроительный план земельного участка, корпус 26 20.05.20222.47 мб, pdf
- Схема планировочной организации земельного участка, корпус 26 20.05.20226.11 мб, pdf
- Разрешение на строительство RU50-11-21454-2022, корпус 26 29.04.2022174.80 кб, pdf
- Экспертиза проектной документации, корпус 26 20.01.20221.96 мб, xml
- Проектная декларация № 50-003359, корпус 25 05.06.2023804.96 кб, pdf
- Проект договора участия в долевом строительстве, корпус 25 31.05.2023320.02 кб, pdf
- Извещение о начале строительства, корпус 25 28.06.2022250.06 кб, pdf
- Градостроительный план земельного участка, корпус 25 15.12.20212.47 мб, pdf
- Схема планировочной организации земельного участка, корпус 25 15.12.20219.03 мб, pdf
- Разрешение на строительство RU50-11-20135-2021, корпус 25 07.12.2021175.82 кб, pdf
- Экспертиза проектной документации, корпус 25 06.12.20211.95 мб, xml
- Проектная декларация № 50-003359, корпус 24 05.06.2023804.96 кб, pdf
- Проект договора участия в долевом строительстве, корпус 24 31.05.2023320.69 кб, pdf
- Извещение о начале строительства, корпус 24 28.06.2022250.06 кб, pdf
- Градостроительный план земельного участка, корпус 24 15.12.20212.47 мб, pdf
- Схема планировочной организации земельного участка, корпус 24 15.12.20219.03 мб, pdf
- Разрешение на строительство RU50-11-20135-2021, корпус 24 07.12.2021175.82 кб, pdf
- Экспертиза проектной документации, корпус 24 06.12.20211.95 мб, xml
- Проектная декларация № 50-003359, корпус 23 05.06.2023804.96 кб, pdf
- Проект договора участия в долевом строительстве, корпус 23 31.05.2023320.67 кб, pdf
- Извещение о начале строительства, корпус 23 28.06.2022250.06 кб, pdf
- Градостроительный план земельного участка, корпус 23 15.12.20212.47 мб, pdf
- Схема планировочной организации земельного участка, корпус 23 15.12.20219.03 мб, pdf
- Разрешение на строительство RU50-11-20135-2021, корпус 23 07.12.2021175.82 кб, pdf
- Экспертиза проектной документации, корпус 23 06.12.20211.95 мб, xml
- Проектная декларация № 50-003698, корпус 19/2 05.06.2023725.89 кб, pdf
- Проект договора участия в долевом строительстве, корпус 19/2 31.05.2023320.75 кб, pdf
- Извещение о начале строительства, корпус 19/2 31.03.2023286.15 кб, pdf
- Схема планировочной организации земельного участка, корпус 19/2 20.05.20226.11 мб, pdf
- Градостроительный план земельного участка, корпус 19/2 20.05.20222.47 мб, pdf
- Разрешение на строительство RU50-11-21454-2022, корпус 19/2 29.04.2022174.80 кб, pdf
- Экспертиза проектной документации, корпус 19/2 20.01.20221.96 мб, xml
- Проектная декларация № 50-003698, корпус 19/1 05.06.2023725.89 кб, pdf
- Проект договора участия в долевом строительстве, корпус 19/1 31.05.2023320.72 кб, pdf
- Извещение о начале строительства, корпус 19/1 31.03.2023286.15 кб, pdf
- Градостроительный план земельного участка, корпус 19/1 20.05.20222.47 мб, pdf
- Схема планировочной организации земельного участка, корпус 19/1 20.05.20226.11 мб, pdf
- Разрешение на строительство RU50-11-21454-2022, корпус 19/1 29.04.2022174.80 кб, pdf
- Экспертиза проектной документации, корпус 19/1 20.01.20221.96 мб, xml





















