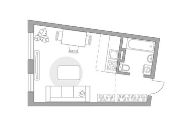
Квартира-студия, 29.06 м², ID 691837
Обновлено Вчера, 17:48
6 706 593 ₽
230 784 ₽ / м2
Описание
Студия квартира, 29.06 м2 в ЖК Аникеевский от
Продается квартира-студия в новостройке ЖК Аникеевский за 6 706 593 ₽, находящаяся по адресу Красногорск, ул Сергея Жадобкина. Строится компанией Гранель. Квартира сдается в 4 квартале 2026 года с чистовой отделкой, в 20 минутах на машине от станции метрополитена Строгино. Общая площадь квартиры - 29.06 кв. м. Этаж 1 из 14. ID квартиры на СтройкиРУ 691837, назовите его когда будете звонить.
Подробнее о ЖК Аникеевский
Особенности
Ход строительства
Документация
- Проектная декларация № 50-003698, корпус 26 05.06.2023725.89 кб, pdf
- Проект договора участия в долевом строительстве, корпус 26 31.05.2023320.81 кб, pdf
- Извещение о начале строительства, корпус 26 31.03.2023286.15 кб, pdf
- Градостроительный план земельного участка, корпус 26 20.05.20222.47 мб, pdf
- Схема планировочной организации земельного участка, корпус 26 20.05.20226.11 мб, pdf
- Разрешение на строительство RU50-11-21454-2022, корпус 26 29.04.2022174.80 кб, pdf
- Экспертиза проектной документации, корпус 26 20.01.20221.96 мб, xml
- Проектная декларация № 50-003359, корпус 25 05.06.2023804.96 кб, pdf
- Проект договора участия в долевом строительстве, корпус 25 31.05.2023320.02 кб, pdf
- Извещение о начале строительства, корпус 25 28.06.2022250.06 кб, pdf
- Градостроительный план земельного участка, корпус 25 15.12.20212.47 мб, pdf
- Схема планировочной организации земельного участка, корпус 25 15.12.20219.03 мб, pdf
- Разрешение на строительство RU50-11-20135-2021, корпус 25 07.12.2021175.82 кб, pdf
- Экспертиза проектной документации, корпус 25 06.12.20211.95 мб, xml
- Проектная декларация № 50-003359, корпус 24 05.06.2023804.96 кб, pdf
- Проект договора участия в долевом строительстве, корпус 24 31.05.2023320.69 кб, pdf
- Извещение о начале строительства, корпус 24 28.06.2022250.06 кб, pdf
- Градостроительный план земельного участка, корпус 24 15.12.20212.47 мб, pdf
- Схема планировочной организации земельного участка, корпус 24 15.12.20219.03 мб, pdf
- Разрешение на строительство RU50-11-20135-2021, корпус 24 07.12.2021175.82 кб, pdf
- Экспертиза проектной документации, корпус 24 06.12.20211.95 мб, xml
- Проектная декларация № 50-003359, корпус 23 05.06.2023804.96 кб, pdf
- Проект договора участия в долевом строительстве, корпус 23 31.05.2023320.67 кб, pdf
- Извещение о начале строительства, корпус 23 28.06.2022250.06 кб, pdf
- Градостроительный план земельного участка, корпус 23 15.12.20212.47 мб, pdf
- Схема планировочной организации земельного участка, корпус 23 15.12.20219.03 мб, pdf
- Разрешение на строительство RU50-11-20135-2021, корпус 23 07.12.2021175.82 кб, pdf
- Экспертиза проектной документации, корпус 23 06.12.20211.95 мб, xml
- Проектная декларация № 50-003698, корпус 19/2 05.06.2023725.89 кб, pdf
- Проект договора участия в долевом строительстве, корпус 19/2 31.05.2023320.75 кб, pdf
- Извещение о начале строительства, корпус 19/2 31.03.2023286.15 кб, pdf
- Схема планировочной организации земельного участка, корпус 19/2 20.05.20226.11 мб, pdf
- Градостроительный план земельного участка, корпус 19/2 20.05.20222.47 мб, pdf
- Разрешение на строительство RU50-11-21454-2022, корпус 19/2 29.04.2022174.80 кб, pdf
- Экспертиза проектной документации, корпус 19/2 20.01.20221.96 мб, xml
- Проектная декларация № 50-003698, корпус 19/1 05.06.2023725.89 кб, pdf
- Проект договора участия в долевом строительстве, корпус 19/1 31.05.2023320.72 кб, pdf
- Извещение о начале строительства, корпус 19/1 31.03.2023286.15 кб, pdf
- Градостроительный план земельного участка, корпус 19/1 20.05.20222.47 мб, pdf
- Схема планировочной организации земельного участка, корпус 19/1 20.05.20226.11 мб, pdf
- Разрешение на строительство RU50-11-21454-2022, корпус 19/1 29.04.2022174.80 кб, pdf
- Экспертиза проектной документации, корпус 19/1 20.01.20221.96 мб, xml





















