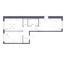
2-Комнатная квартира, 60.03 м², ID 701039
Обновлено Сегодня, 03:24
16 399 528 ₽
273 189 ₽ / м2
- Срок сдачи
- IV квартал 2026
- Застройщик
- нет данных
- Общая площадь
- 60.03 м2
- Жилая площадь
- 30.81 м2
- Площадь кухни
- 60.03 м2
- Этаж
- 17 из 17
- Корпус
- 1.1
- Отделка
- Чистовая
- ID
- 701039
Описание
Двухкомнатная квартира, 60.03 м2 в ЖК Космический Квартал от
Продается двухкомнатная квартира в новостройке ЖК Космический Квартал за 16 399 528 р, находящаяся по адресу Королёв, мкр Юбилейный, ул М.К.Тихонравова. Застройщик дома Группа "Самолет". Квартира сдается в IV квартале 2026 года с чистовой отделкой, в 22 минутах на машине от станции метрополитена Медведково. Общая площадь квартиры - 60.03 м². Этаж 17 из 17. ID квартиры на СтройкиРУ 701039, назовите его когда будете звонить.






















