Реклама. Застройщик

Проектная декларация на наш.дом.рф. Токен: 2SDnjewfm2q.

Поствью

Реклама. Застройщик LEGENDA Intelligent Development

Проектная декларация на наш.дом.рф. Токен: 2SDnjewfm2q.

LEGENDA Intelligent DevelopmentПоствью

Реклама. Застройщик LEGENDA Intelligent Development

Проектная декларация на наш.дом.рф. Токен: 2SDnjewfm2q.

LEGENDA Intelligent DevelopmentПоствью

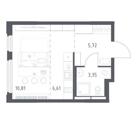
Квартира-студия, 26.49 м², ID 700930

6 323 137 ₽

238 699 ₽ / м2

Срок сдачи
IV квартал 2026
Застройщик
нет данных
Общая площадь
26.49 м2
Жилая площадь
10.81 м2
Площадь кухни
26.49 м2
Этаж
12 из 17
Корпус
1.1
Отделка
Черновая
ID
700930

Расположение

Королёв,мкр Юбилейный, ул М.К.Тихонравова

Описание

Студия квартира, 26.49 м2 в ЖК Космический Квартал от

Продается квартира-студия в новостройке ЖК Космический Квартал стоимостью 6 323 137 р, по адресу Королёв, мкр Юбилейный, ул М.К.Тихонравова. Застройщик дома Группа "Самолет". Квартира сдается в IV квартале 2026 года с черновой отделкой, в 22 минутах на машине от станции метро Медведково. Общая площадь квартиры - 26.49 м². Этаж 12 из 17. ID квартиры на СтройкиРУ 700930, скажите его когда будете звонить.

Подробнее о ЖК Космический Квартал

“Космический квартал” - жилой квартал от группы компаний “Самолет” в городе Королев.  Комплекс представляет собой 3 корпуса с переменной этажностью от 12 до 17 этажей. Застройщик предлагает к покупке студии и 1–3–комнатные квартиры от 22,9 м2 до 78,5 м2 в классической и евро-планировке с раздельными или совместными санузлами, лоджиями, просторными кухнями.  Инфраструктура и благоустройство До МКАД составляет 11 километров, ближайшие станции метро “Медведково” и “Комсомольская” находятся в 40-50 минутах, в 20 минутах пешком находится железнодорожная платформа Болшево, откуда можно доехать до Ярославского вокзала Наличие собственного детского сада Многоуровневые паркинги На первых этажах домов есть магазины, спортзал, ресторан и аптеки Крытый двор-парк, в котором располагаются игровые площадки, места для спокойного отдыха, спортивные зоны Вблизи новостройки находятся: средняя школа №8, детские сады “Журавушка”, “Рябинка”, гимназия №3, городская больница, фитнес-клуб, стоматологии, рестораны, продуктовый рынок, салоны красоты, супермаркеты В пешей доступности есть несколько скверов и парков для прогулок на свежем воздухе. А так же в 20 пешей доступности простираются Верхний и Нижний Комитетские леса.     Страница ЖК >>
Застройщик %_NAME_% Застройщик %_NAME_%
%_YEAR_%Год основания
99Сдано корпусов в 9 ЖК
999Строится корпусов в 99 ЖК

Жилые комплексы от

Ход строительства

Популярные жилые комплексы

    Похожие квартиры

    Студия квартира, 26.49 м2

    6 323 137 ₽

    238 699 ₽ / м2

    Срок сдачи IV кв. 2026

    Застройщик

    Количество объектов:

    Застройщик %_NAME_%
    Показать телефон

    Застройщик