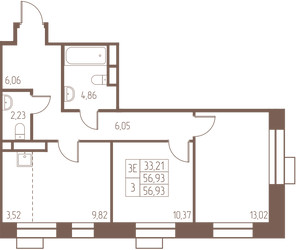
3-Комнатная квартира, 56.9 м², ID 663154
Обновлено 6 дня назад
10 741 633 ₽
188 781 ₽ / м2
- Срок сдачи
- IV квартал 2026
- Застройщик
- нет данных
- Общая площадь
- 56.9 м2
- Этаж
- 24 из 25
- Корпус
- 4
- Отделка
- Предчистовая
- ID
- 663154
Расположение
Описание
Трехкомнатная квартира, 56.9 м2 в ЖК Западная Ивантеевка от
Продается трехкомнатная квартира в новостройке ЖК Западная Ивантеевка за 10 741 633 р, находящаяся по адресу Ивантеевка, ул Первомайская, д 13. Застройщик дома ПРОФИ-Инвест. Квартира сдается в IV квартале 2026 года с предчистовой отделкой, в 24 минутах на машине от станции метрополитена Медведково. Общая площадь квартиры - 56.9 м². Этаж 24. ID квартиры на СтройкиРУ 663154, назовите его когда будете звонить.













