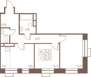
3-Комнатная квартира, 56.9 м², ID 663128
Обновлено 5 дня назад
10 550 663 ₽
185 425 ₽ / м2
- Срок сдачи
- IV квартал 2026
- Застройщик
- нет данных
- Общая площадь
- 56.9 м2
- Этаж
- 19 из 25
- Корпус
- 4
- Отделка
- Предчистовая
- ID
- 663128
Расположение
Описание
Трехкомнатная квартира, 56.9 м2 в ЖК Западная Ивантеевка от
Продается 3-комн. квартира в новостройке ЖК Западная Ивантеевка за 10 550 663 ₽, находящаяся по адресу Ивантеевка, ул Первомайская, д 13. Строится компанией ПРОФИ-Инвест. Квартира сдается в 4 квартале 2026 года с предчистовой отделкой, в 24 минутах на машине от станции метрополитена Медведково. Общая площадь квартиры - 56.9 кв. м. Этаж 19. ID квартиры на СтройкиРУ 663128, назовите его когда будете звонить.













