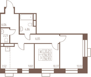
3-Комнатная квартира, 56.9 м², ID 663112
Обновлено 5 дня назад
10 423 351 ₽
183 187 ₽ / м2
- Срок сдачи
- IV квартал 2026
- Застройщик
- нет данных
- Общая площадь
- 56.9 м2
- Этаж
- 14 из 25
- Корпус
- 4
- Отделка
- Предчистовая
- ID
- 663112
Расположение
Описание
Трехкомнатная квартира, 56.9 м2 в ЖК Западная Ивантеевка от
Продается 3-комн. квартира в новостройке ЖК Западная Ивантеевка за 10 423 351 ₽, находящаяся по адресу Ивантеевка, ул Первомайская, д 13. Строится компанией ПРОФИ-Инвест. Квартира сдается в 4 квартале 2026 года с предчистовой отделкой, в 24 минутах на машине от станции метрополитена Медведково. Общая площадь квартиры - 56.9 кв. м. Этаж 14. ID квартиры на СтройкиРУ 663112, назовите его когда будете звонить.













