3-Комнатная квартира, 56.9 м², ID 663110
Обновлено Вчера, 05:55
10 423 351 ₽
183 187 ₽ / м2
- Срок сдачи
- IV квартал 2026
- Застройщик
- нет данных
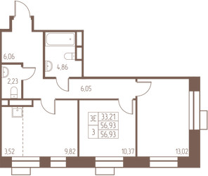
- Общая площадь
- 56.9 м2
- Этаж
- 15 из 25
- Корпус
- 4
- Отделка
- Предчистовая
- ID
- 663110
Расположение
Описание
Трехкомнатная квартира, 56.9 м2 в ЖК Западная Ивантеевка от
Продается трехкомнатная квартира в новостройке ЖК Западная Ивантеевка за 10 423 351 р, находящаяся по адресу Ивантеевка, ул Первомайская, д 13. Застройщик дома ПРОФИ-Инвест. Квартира сдается в IV квартале 2026 года с предчистовой отделкой, в 24 минутах на машине от станции метрополитена Медведково. Общая площадь квартиры - 56.9 м². Этаж 15. ID квартиры на СтройкиРУ 663110, назовите его когда будете звонить.













