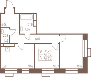
3-Комнатная квартира, 56.9 м², ID 663108
Обновлено 6 дня назад
10 391 523 ₽
182 628 ₽ / м2
- Срок сдачи
- IV квартал 2026
- Застройщик
- нет данных
- Общая площадь
- 56.9 м2
- Этаж
- 12 из 25
- Корпус
- 4
- Отделка
- Предчистовая
- ID
- 663108
Расположение
Описание
Трехкомнатная квартира, 56.9 м2 в ЖК Западная Ивантеевка от
Продается трехкомнатная квартира в новостройке ЖК Западная Ивантеевка по цене 10 391 523 рублей, расположенная по адресу Ивантеевка, ул Первомайская, д 13. Компания застройщик ПРОФИ-Инвест. Квартира сдается в IV квартале 2026 года с предчистовой отделкой, в 24 минутах на машине от метро Медведково. Общая площадь квартиры - 56.9 м². Этаж 12. ID квартиры на СтройкиРУ 663108, сообщите его когда будете звонить.













