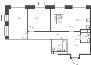
2-Комнатная квартира, 71 м², ID 665263
Обновлено Вчера, 06:23
11 995 982 ₽
168 958 ₽ / м2
- Срок сдачи
- III квартал 2026
- Застройщик
- нет данных
- Общая площадь
- 71 м2
- Этаж
- 9 из 25
- Корпус
- 1.1.
- Отделка
- Предчистовая
- ID
- 665263
Описание
Двухкомнатная квартира, 71 м2 в ЖК Новая Ивантеевка от
Продается двухкомнатная квартира в новостройке ЖК Новая Ивантеевка за 11 995 982 р, находящаяся по адресу Ивантеевка, ул Заводская. Застройщик дома ПРОФИ-Инвест. Квартира сдается в III квартале 2026 года с предчистовой отделкой, в 25 минутах на машине от станции метрополитена Медведково. Общая площадь квартиры - 71 м². Этаж 9. ID квартиры на СтройкиРУ 665263, назовите его когда будете звонить.
























