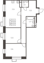
2-Комнатная квартира, 70.9 м², ID 660862
Обновлено 4 дня назад
11 277 870 ₽
159 067 ₽ / м2
- Срок сдачи
- III квартал 2026
- Застройщик
- нет данных
- Общая площадь
- 70.9 м2
- Этаж
- 8 из 25
- Корпус
- 1.1.
- Отделка
- Предчистовая
- ID
- 660862
Описание
Двухкомнатная квартира, 70.9 м2 в ЖК Новая Ивантеевка от
Продается 2-комн. квартира в новостройке ЖК Новая Ивантеевка за 11 277 870 ₽, находящаяся по адресу Ивантеевка, ул Заводская. Строится компанией ПРОФИ-Инвест. Квартира сдается в 3 квартале 2026 года с предчистовой отделкой, в 25 минутах на машине от станции метрополитена Медведково. Общая площадь квартиры - 70.9 кв. м. Этаж 8. ID квартиры на СтройкиРУ 660862, назовите его когда будете звонить.
























