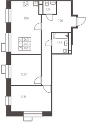
2-Комнатная квартира, 70.9 м², ID 660860
Обновлено 5 дня назад
11 206 940 ₽
158 067 ₽ / м2
- Срок сдачи
- III квартал 2026
- Застройщик
- нет данных
- Общая площадь
- 70.9 м2
- Этаж
- 7 из 25
- Корпус
- 1.1.
- Отделка
- Предчистовая
- ID
- 660860
Описание
Двухкомнатная квартира, 70.9 м2 в ЖК Новая Ивантеевка от
Продается 2-комн. квартира в новостройке ЖК Новая Ивантеевка по цене 11 206 940 руб, расположенная по адресу Ивантеевка, ул Заводская. Застройщик ПРОФИ-Инвест. Квартира сдается в 3 квартале 2026 года с предчистовой отделкой, в 25 минутах на машине от метро Медведково. Общая площадь квартиры - 70.9 кв. м. Этаж 7. ID квартиры на СтройкиРУ 660860, сообщите его когда будете звонить.
























