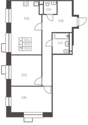
2-Комнатная квартира, 70.9 м², ID 660856
Обновлено Неделю назад
11 065 080 ₽
156 066 ₽ / м2
- Срок сдачи
- IV квартал 2026
- Застройщик
- нет данных
- Общая площадь
- 70.9 м2
- Этаж
- 4 из 25
- Корпус
- 1.1.
- Отделка
- Предчистовая
- ID
- 660856
Описание
Двухкомнатная квартира, 70.9 м2 в ЖК Новая Ивантеевка от
Продается двухкомнатная квартира в новостройке ЖК Новая Ивантеевка за 11 065 080 р, находящаяся по адресу Ивантеевка, ул Заводская. Застройщик дома ПРОФИ-Инвест. Квартира сдается в III квартале 2026 года с предчистовой отделкой, в 25 минутах на машине от станции метрополитена Медведково. Общая площадь квартиры - 70.9 м². Этаж 4. ID квартиры на СтройкиРУ 660856, назовите его когда будете звонить.
























