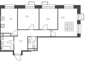
3-Комнатная квартира, 70.9 м², ID 658567
Обновлено Вчера, 08:22
14 538 600 ₽
205 058 ₽ / м2
- Срок сдачи
- III квартал 2026
- Застройщик
- нет данных
- Общая площадь
- 70.9 м2
- Этаж
- 15 из 25
- Корпус
- 1.1.
- Отделка
- Предчистовая
- ID
- 658567
Описание
Трехкомнатная квартира, 70.9 м2 в ЖК Новая Ивантеевка от
Продается 3-комн. квартира в новостройке ЖК Новая Ивантеевка за 14 538 600 ₽, находящаяся по адресу Ивантеевка, ул Заводская. Строится компанией ПРОФИ-Инвест. Квартира сдается в 3 квартале 2026 года с предчистовой отделкой, в 25 минутах на машине от станции метрополитена Медведково. Общая площадь квартиры - 70.9 кв. м. Этаж 15. ID квартиры на СтройкиРУ 658567, назовите его когда будете звонить.
























