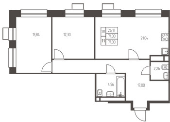
2-Комнатная квартира, 71 м², ID 658542
Обновлено Вчера, 09:28
12 107 275 ₽
170 525 ₽ / м2
- Срок сдачи
- III квартал 2026
- Застройщик
- нет данных
- Общая площадь
- 71 м2
- Этаж
- 10 из 25
- Корпус
- 1.1.
- Отделка
- Предчистовая
- ID
- 658542
Описание
Двухкомнатная квартира, 71 м2 в ЖК Новая Ивантеевка от
Продается 2-комн. квартира в новостройке ЖК Новая Ивантеевка по цене 12 107 275 руб, расположенная по адресу Ивантеевка, ул Заводская. Застройщик ПРОФИ-Инвест. Квартира сдается в 3 квартале 2026 года с предчистовой отделкой, в 25 минутах на машине от метро Медведково. Общая площадь квартиры - 71 кв. м. Этаж 10. ID квартиры на СтройкиРУ 658542, сообщите его когда будете звонить.
























