3-Комнатная квартира, 70.9 м², ID 656918
Обновлено Вчера, 08:44
11 169 900 ₽
157 544 ₽ / м2
- Срок сдачи
- III квартал 2026
- Застройщик
- нет данных
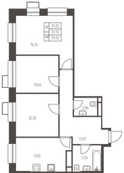
- Общая площадь
- 70.9 м2
- Этаж
- 14 из 25
- Корпус
- 1.1.
- Отделка
- Предчистовая
- ID
- 656918
Описание
Трехкомнатная квартира, 70.9 м2 в ЖК Новая Ивантеевка от
Продается трехкомнатная квартира в новостройке ЖК Новая Ивантеевка за 11 169 900 рублей, находящаяся по адресу Ивантеевка, ул Заводская. Компания застройщик ПРОФИ-Инвест. Квартира сдается в III квартале 2026 года с предчистовой отделкой, в 25 минутах на машине от станции метрополитена Медведково. Общая площадь квартиры - 70.9 м². Этаж 14. ID квартиры на СтройкиРУ 656918, назовите его когда будете звонить.
























