3-Комнатная квартира, 70.9 м², ID 656910
Обновлено Вчера, 08:42
11 042 244 ₽
155 744 ₽ / м2
- Срок сдачи
- III квартал 2026
- Застройщик
- нет данных
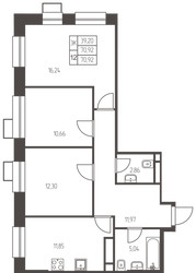
- Общая площадь
- 70.9 м2
- Этаж
- 12 из 25
- Корпус
- 1.1.
- Отделка
- Предчистовая
- ID
- 656910
Описание
Трехкомнатная квартира, 70.9 м2 в ЖК Новая Ивантеевка от
Продается 3-комн. квартира в новостройке ЖК Новая Ивантеевка стоимостью 11 042 244 руб, по адресу Ивантеевка, ул Заводская. Застройщик ПРОФИ-Инвест. Квартира сдается в 3 квартале 2026 года с предчистовой отделкой, в 25 минутах на машине от станции метро Медведково. Общая площадь квартиры - 70.9 кв. м. Этаж 12. ID квартиры на СтройкиРУ 656910, скажите его когда будете звонить.
























