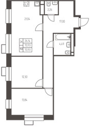
2-Комнатная квартира, 70.9 м², ID 656819
Обновлено Неделю назад
11 916 240 ₽
168 071 ₽ / м2
- Срок сдачи
- III квартал 2026
- Застройщик
- нет данных
- Общая площадь
- 70.9 м2
- Этаж
- 21 из 25
- Корпус
- 1.1.
- Отделка
- Предчистовая
- ID
- 656819
Описание
Двухкомнатная квартира, 70.9 м2 в ЖК Новая Ивантеевка от
Продается двухкомнатная квартира в новостройке ЖК Новая Ивантеевка за 11 916 240 рублей, находящаяся по адресу Ивантеевка, ул Заводская. Компания застройщик ПРОФИ-Инвест. Квартира сдается в III квартале 2026 года с предчистовой отделкой, в 25 минутах на машине от станции метрополитена Медведково. Общая площадь квартиры - 70.9 м². Этаж 21. ID квартиры на СтройкиРУ 656819, назовите его когда будете звонить.
























