1-Комнатная квартира, 41.9 м², ID 656802
Обновлено Сегодня, 09:32
7 046 721 ₽
168 180 ₽ / м2
- Срок сдачи
- III квартал 2026
- Застройщик
- нет данных
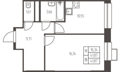
- Общая площадь
- 41.9 м2
- Этаж
- 25 из 25
- Корпус
- 1.1.
- Отделка
- Предчистовая
- ID
- 656802
Описание
Однокомнатная квартира, 41.9 м2 в ЖК Новая Ивантеевка от
Продается однокомнатная квартира в новостройке ЖК Новая Ивантеевка стоимостью 7 046 721 р, по адресу Ивантеевка, ул Заводская. Застройщик дома ПРОФИ-Инвест. Квартира сдается в III квартале 2026 года с предчистовой отделкой, в 25 минутах на машине от станции метро Медведково. Общая площадь квартиры - 41.9 м². Этаж 25. ID квартиры на СтройкиРУ 656802, скажите его когда будете звонить.
























