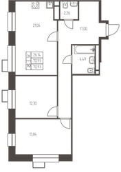
2-Комнатная квартира, 70.9 м², ID 656793
Обновлено Сегодня, 09:27
11 703 450 ₽
165 070 ₽ / м2
- Срок сдачи
- III квартал 2026
- Застройщик
- нет данных
- Общая площадь
- 70.9 м2
- Этаж
- 16 из 25
- Корпус
- 1.1.
- Отделка
- Предчистовая
- ID
- 656793
Описание
Двухкомнатная квартира, 70.9 м2 в ЖК Новая Ивантеевка от
Продается 2-комн. квартира в новостройке ЖК Новая Ивантеевка по цене 11 703 450 руб, расположенная по адресу Ивантеевка, ул Заводская. Застройщик ПРОФИ-Инвест. Квартира сдается в 3 квартале 2026 года с предчистовой отделкой, в 25 минутах на машине от метро Медведково. Общая площадь квартиры - 70.9 кв. м. Этаж 16. ID квартиры на СтройкиРУ 656793, сообщите его когда будете звонить.
























