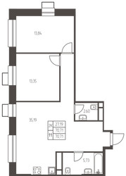
2-Комнатная квартира, 70.7 м², ID 656773
Обновлено Вчера, 09:22
11 525 730 ₽
163 023 ₽ / м2
- Срок сдачи
- III квартал 2026
- Застройщик
- нет данных
- Общая площадь
- 70.7 м2
- Этаж
- 13 из 25
- Корпус
- 1.1.
- Отделка
- Предчистовая
- ID
- 656773
Описание
Двухкомнатная квартира, 70.7 м2 в ЖК Новая Ивантеевка от
Продается 2-комн. квартира в новостройке ЖК Новая Ивантеевка по цене 11 525 730 ₽, расположенная по адресу Ивантеевка, ул Заводская. Строится компанией ПРОФИ-Инвест. Квартира сдается в 3 квартале 2026 года с предчистовой отделкой, в 25 минутах на машине от метро Медведково. Общая площадь квартиры - 70.7 кв. м. Этаж 13. ID квартиры на СтройкиРУ 656773, сообщите его когда будете звонить.
























