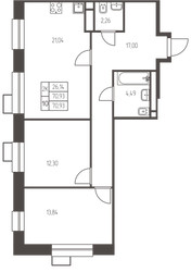
2-Комнатная квартира, 70.9 м², ID 656767
Обновлено Сегодня, 05:30
11 490 660 ₽
162 069 ₽ / м2
- Срок сдачи
- III квартал 2026
- Застройщик
- нет данных
- Общая площадь
- 70.9 м2
- Этаж
- 11 из 25
- Корпус
- 1.1.
- Отделка
- Предчистовая
- ID
- 656767
Описание
Двухкомнатная квартира, 70.9 м2 в ЖК Новая Ивантеевка от
Продается двухкомнатная квартира в новостройке ЖК Новая Ивантеевка по цене 11 490 660 рублей, расположенная по адресу Ивантеевка, ул Заводская. Компания застройщик ПРОФИ-Инвест. Квартира сдается в III квартале 2026 года с предчистовой отделкой, в 25 минутах на машине от метро Медведково. Общая площадь квартиры - 70.9 м². Этаж 11. ID квартиры на СтройкиРУ 656767, сообщите его когда будете звонить.




















