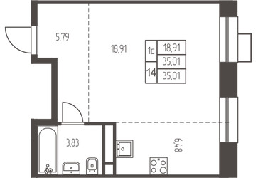
Квартира-студия, 35 м², ID 635956
Обновлено 4 дня назад
5 684 048 ₽
162 401 ₽ / м2
- Срок сдачи
- III квартал 2026
- Застройщик
- нет данных
- Тип
- Студия
- Общая площадь
- 35 м2
- Этаж
- 4 из 25
- Корпус
- 1.1.
- Отделка
- Предчистовая
- ID
- 635956
Описание
Студия квартира, 35 м2 в ЖК Новая Ивантеевка от
Продается квартира-студия в новостройке ЖК Новая Ивантеевка стоимостью 5 684 048 руб, по адресу Ивантеевка, ул Заводская. Застройщик ПРОФИ-Инвест. Квартира сдается в 3 квартале 2026 года с предчистовой отделкой, в 25 минутах на машине от станции метро Медведково. Общая площадь квартиры - 35 кв. м. Этаж 4. ID квартиры на СтройкиРУ 635956, скажите его когда будете звонить.
























