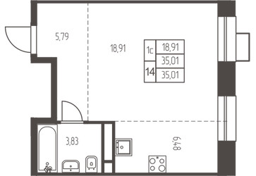
Квартира-студия, 35 м², ID 635950
Обновлено Позавчера
5 610 877 ₽
160 311 ₽ / м2
- Срок сдачи
- III квартал 2026
- Застройщик
- нет данных
- Тип
- Студия
- Общая площадь
- 35 м2
- Этаж
- 2 из 25
- Корпус
- 1.1.
- Отделка
- Предчистовая
- ID
- 635950
Описание
Студия квартира, 35 м2 в ЖК Новая Ивантеевка от
Продается квартира-студия в новостройке ЖК Новая Ивантеевка по цене 5 610 877 руб, расположенная по адресу Ивантеевка, ул Заводская. Застройщик ПРОФИ-Инвест. Квартира сдается в 3 квартале 2026 года с предчистовой отделкой, в 25 минутах на машине от метро Медведково. Общая площадь квартиры - 35 кв. м. Этаж 2. ID квартиры на СтройкиРУ 635950, сообщите его когда будете звонить.
























