2-Комнатная квартира, 65.7 м², ID 635795
Обновлено Позавчера
10 808 969 ₽
164 520 ₽ / м2
- Срок сдачи
- III квартал 2026
- Застройщик
- нет данных
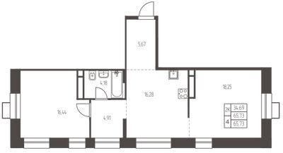
- Общая площадь
- 65.7 м2
- Этаж
- 5 из 25
- Корпус
- 1.1.
- Отделка
- Предчистовая
- ID
- 635795
Описание
Двухкомнатная квартира, 65.7 м2 в ЖК Новая Ивантеевка от
Продается двухкомнатная квартира в новостройке ЖК Новая Ивантеевка за 10 808 969 рублей, находящаяся по адресу Ивантеевка, ул Заводская. Компания застройщик ПРОФИ-Инвест. Квартира сдается в III квартале 2026 года с предчистовой отделкой, в 25 минутах на машине от станции метрополитена Медведково. Общая площадь квартиры - 65.7 м². Этаж 5. ID квартиры на СтройкиРУ 635795, назовите его когда будете звонить.




















