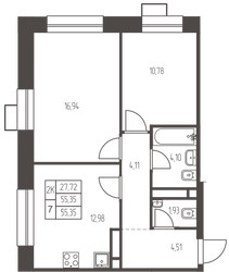
2-Комнатная квартира, 55.4 м², ID 635720
Обновлено Сегодня, 08:04
9 275 553 ₽
167 429 ₽ / м2
- Срок сдачи
- III квартал 2026
- Застройщик
- нет данных
- Общая площадь
- 55.4 м2
- Этаж
- 13 из 25
- Корпус
- 1.1.
- Отделка
- Предчистовая
- ID
- 635720
Описание
Двухкомнатная квартира, 55.4 м2 в ЖК Новая Ивантеевка от
Продается двухкомнатная квартира в новостройке ЖК Новая Ивантеевка стоимостью 9 275 553 р, по адресу Ивантеевка, ул Заводская. Застройщик дома ПРОФИ-Инвест. Квартира сдается в III квартале 2026 года с предчистовой отделкой, в 25 минутах на машине от станции метро Медведково. Общая площадь квартиры - 55.4 м². Этаж 13. ID квартиры на СтройкиРУ 635720, скажите его когда будете звонить.
























