Реклама. Застройщик

Проектная декларация на наш.дом.рф. Токен: 2SDnjewfm2q.

Поствью

Реклама. Застройщик LEGENDA Intelligent Development

Проектная декларация на наш.дом.рф. Токен: 2SDnjewfm2q.

LEGENDA Intelligent DevelopmentПоствью

Реклама. Застройщик LEGENDA Intelligent Development

Проектная декларация на наш.дом.рф. Токен: 2SDnjewfm2q.

LEGENDA Intelligent DevelopmentПоствью

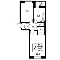
2-Комнатная квартира, 61.2 м², ID 706491

9 121 248 ₽

149 040 ₽ / м2

Срок сдачи
II квартал 2025
Застройщик
нет данных
Общая площадь
61.2 м2
Этаж
3 из 12
Корпус
1
Отделка
Черновая
ID
706491

Описание

Двухкомнатная квартира, 61.2 м2 в ЖК Космос от

Продается 2-комн. квартира в новостройке ЖК Космос по цене 9 121 248 руб, расположенная по адресу Домодедово, мкр Авиационный, ул Жуковского, д 1. Застройщик Скала. Квартира сдается в 2 квартале 2025 года с черновой отделкой, в 39 минутах на машине от метро Домодедовская. Общая площадь квартиры - 61.2 кв. м. Этаж 3. ID квартиры на СтройкиРУ 706491, сообщите его когда будете звонить.

Подробнее о ЖК Космос

“Космос” - жилой комплекс комфорт-класса от специального застройщика “Скала” в Домодедово. Комплекс представляет собой 7 монолитно-кирпичных 12-этажных корпусов. Квартирография проекта насчитывает более 20 вариантов планировочных решений. Приобрести жилье можно площадью от 27 м2 до 103,05 м2. Разнообразие планировок предусматривает наличие лотов с двусторонней ориентацией окон, раздельным санузлом или дополнительным гостевым санузлом, большой прихожей и просторной кухней-гостиной.  В некоторых корпусах есть квартиры с предчистовой или чистовой отделкой от застройщика.  Инфраструктура и благоустройство До станции метро “Домодедовская” - 39 минут на транспорте.  Дорога до МКАД на авто займет не более 20-25 минут без учета пробок Для сохранения внешнего вида фасадов в первозданном виде все квартиры оборудованы декоративными корзинами под наружные блоки кондиционеров Расположение корпусов образует светлые просторные дворы, которые будут благоустроены в соответствии с потребностями всех жителей новостройки В микрорайоне представлены квартиры с отдельными входами и лоты с просторными террасами Наземные автостоянки на 544 машиноместа Для магазинов и предприятий бытового обслуживания выделены коммерческие помещения на первых этажах домов В пешей доступности от комплекса расположены школы, детские сады, остановки общественного транспорта, парк “Взлет” и ж/д станция “Авиационная”. Страница ЖК >>
Застройщик %_NAME_% Застройщик %_NAME_%
%_YEAR_%Год основания
99Сдано корпусов в 9 ЖК
999Строится корпусов в 99 ЖК

Жилые комплексы от

Ход строительства

Популярные жилые комплексы

    Похожие квартиры

    Двухкомнатная квартира, 61.2 м2

    9 121 248 ₽

    149 040 ₽ / м2

    Сдан

    Застройщик

    Количество объектов:

    Застройщик %_NAME_%
    Показать телефон

    Застройщик