Квартира-студия, 33.7 м², ID 688860
Обновлено Сегодня, 14:39
10 054 275 ₽
298 346 ₽ / м2
Описание
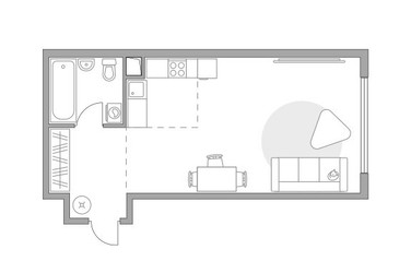
Студия квартира, 33.7 м2 в ЖК Бригантина от
Продается квартира-студия в новостройке ЖК Бригантина по цене 10 054 275 руб, расположенная по адресу Долгопрудный, ул Заводская, д 2 к 13. Застройщик Гранель. Квартира сдается в 3 квартале 2026 года с черновой отделкой, в 15 минутах на машине от метро Ховрино. Общая площадь квартиры - 33.7 кв. м. Этаж 2 из 23. ID квартиры на СтройкиРУ 688860, сообщите его когда будете звонить.
Подробнее о ЖК Бригантина
Особенности
Ход строительства
Документация
- Разрешение на ввод RU50-42-18671-2021, корпус 4 17.06.2021138.18 кб, pdf
- Проектная декларация № 50-001924, корпус 4 08.06.2021253.54 кб, pdf
- Экспертиза проектной документации, корпус 4 23.12.2020363.33 кб, pdf
- Проект договора участия в долевом строительстве, корпус 4 23.03.2020295.78 кб, pdf
- Схема планировочной организации земельного участка, корпус 4 18.12.20191,019.35 кб, pdf
- Заключение о степени готовности RU50-42-11655-2018, корпус 4 19.07.20191,004.50 кб, pdf
- Извещение о начале строительства, корпус 4 04.03.2019777.76 кб, pdf
- Градостроительный план земельного участка, корпус 4 28.02.201922.85 мб, pdf
- Сведения об уплате застройщиком обязательных отчислений, корпус 4 15.02.2019157.84 кб, pdf
- Информация о выданных заключениях о соответствии застройщика и проектной декларации требованиям 214-ФЗ 50-001924 00686-18ИСХ/ЗОСТ, корпус 4 19.12.2018726.81 кб, pdf
- Разрешение на строительство RU50-42-11655-2018, корпус 4 04.09.2018122.59 кб, pdf
- Разрешение на ввод RU50-42-18671-2021, корпус 14.2 17.06.2021138.18 кб, pdf
- Проектная декларация № 50-001924, корпус 14.2 08.06.2021253.54 кб, pdf
- Экспертиза проектной документации, корпус 14.2 23.12.2020363.33 кб, pdf
- Проект договора участия в долевом строительстве, корпус 14.2 23.03.2020295.78 кб, pdf
- Схема планировочной организации земельного участка, корпус 14.2 18.12.20191,019.35 кб, pdf
- Заключение о степени готовности RU50-42-11655-2018, корпус 14.2 19.07.20191,004.50 кб, pdf
- Извещение о начале строительства, корпус 14.2 04.03.2019777.76 кб, pdf
- Градостроительный план земельного участка, корпус 14.2 28.02.201922.85 мб, pdf
- Сведения об уплате застройщиком обязательных отчислений, корпус 14.2 15.02.2019157.84 кб, pdf
- Информация о выданных заключениях о соответствии застройщика и проектной декларации требованиям 214-ФЗ 50-001924 00686-18ИСХ/ЗОСТ, корпус 14.2 19.12.2018726.81 кб, pdf
- Разрешение на строительство RU50-42-11655-2018, корпус 14.2 04.09.2018122.59 кб, pdf
- Разрешение на ввод RU50-42-18671-2021, корпус 7 17.06.2021138.18 кб, pdf
- Проектная декларация № 50-001924, корпус 7 08.06.2021253.54 кб, pdf
- Экспертиза проектной документации, корпус 7 23.12.2020363.33 кб, pdf
- Проект договора участия в долевом строительстве, корпус 7 23.03.2020295.78 кб, pdf
- Схема планировочной организации земельного участка, корпус 7 18.12.20191,019.35 кб, pdf
- Заключение о степени готовности RU50-42-11655-2018, корпус 7 19.07.20191,004.50 кб, pdf
- Извещение о начале строительства, корпус 7 04.03.2019777.76 кб, pdf
- Градостроительный план земельного участка, корпус 7 28.02.201922.85 мб, pdf
- Сведения об уплате застройщиком обязательных отчислений, корпус 7 15.02.2019157.84 кб, pdf
- Информация о выданных заключениях о соответствии застройщика и проектной декларации требованиям 214-ФЗ 50-001924 00686-18ИСХ/ЗОСТ, корпус 7 19.12.2018726.81 кб, pdf
- Разрешение на строительство RU50-42-11655-2018, корпус 7 04.09.2018122.59 кб, pdf
- Разрешение на ввод RU50-42-18671-2021, корпус 6 17.06.2021138.18 кб, pdf
- Проектная декларация № 50-001924, корпус 6 08.06.2021253.54 кб, pdf
- Экспертиза проектной документации, корпус 6 23.12.2020363.33 кб, pdf
- Проект договора участия в долевом строительстве, корпус 6 23.03.2020295.78 кб, pdf
- Схема планировочной организации земельного участка, корпус 6 18.12.20191,019.35 кб, pdf
- Заключение о степени готовности RU50-42-11655-2018, корпус 6 19.07.20191,004.50 кб, pdf
- Извещение о начале строительства, корпус 6 04.03.2019777.76 кб, pdf
- Градостроительный план земельного участка, корпус 6 28.02.201922.85 мб, pdf
- Сведения об уплате застройщиком обязательных отчислений, корпус 6 15.02.2019157.84 кб, pdf
- Информация о выданных заключениях о соответствии застройщика и проектной декларации требованиям 214-ФЗ 50-001924 00686-18ИСХ/ЗОСТ, корпус 6 19.12.2018726.81 кб, pdf
- Разрешение на строительство RU50-42-11655-2018, корпус 6 04.09.2018122.59 кб, pdf
- Разрешение на ввод RU50-42-18671-2021, корпус 5 17.06.2021138.18 кб, pdf
- Проектная декларация № 50-001924, корпус 5 08.06.2021253.54 кб, pdf
- Экспертиза проектной документации, корпус 5 23.12.2020363.33 кб, pdf
- Проект договора участия в долевом строительстве, корпус 5 23.03.2020295.78 кб, pdf
- Схема планировочной организации земельного участка, корпус 5 18.12.20191,019.35 кб, pdf
- Заключение о степени готовности RU50-42-11655-2018, корпус 5 19.07.20191,004.50 кб, pdf
- Извещение о начале строительства, корпус 5 04.03.2019777.76 кб, pdf
- Градостроительный план земельного участка, корпус 5 28.02.201922.85 мб, pdf
- Сведения об уплате застройщиком обязательных отчислений, корпус 5 15.02.2019157.84 кб, pdf
- Информация о выданных заключениях о соответствии застройщика и проектной декларации требованиям 214-ФЗ 50-001924 00686-18ИСХ/ЗОСТ, корпус 5 19.12.2018726.81 кб, pdf
- Разрешение на строительство RU50-42-11655-2018, корпус 5 04.09.2018122.59 кб, pdf






















