Квартира-студия, 26.53 м², ID 691379
Обновлено Сегодня, 03:50
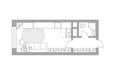
Описание
Студия квартира, 26.53 м2 в ЖК Пехра от
Продается квартира-студия в новостройке ЖК Пехра по цене 6 261 328 р, расположенная по адресу Балашиха, ул Трубецкая. Застройщик дома Гранель. Квартира сдается в III квартале 2026 года с чистовой отделкой, в 20 минутах на машине от метро Щёлковская. Общая площадь квартиры - 26.53 м². Этаж 14 из 25. ID квартиры на СтройкиРУ 691379, сообщите его когда будете звонить.
Подробнее о ЖК Пехра
Особенности
Ход строительства
Документация
- Проектная декларация № 50-003266, корпус 10 06.06.20231.01 мб, pdf
- Проект договора участия в долевом строительстве, корпус 10 16.03.2023338.35 кб, pdf
- Извещение о начале строительства, корпус 10 20.04.2022347.97 кб, pdf
- Градостроительный план земельного участка, корпус 10 23.08.20213.84 мб, pdf
- Схема планировочной организации земельного участка, корпус 10 23.08.20211.47 мб, pdf
- Разрешение на строительство RU50-15-13766-2019, корпус 10 24.06.2019110.81 кб, pdf
- Экспертиза проектной документации, корпус 10 21.06.201826.19 мб, pdf
- Разрешение на ввод RU50-15-21972-2022, корпус 11 01.08.2022140.00 кб, pdf
- Проектная декларация № 50-001351, корпус 11 29.07.2022895.57 кб, pdf
- Проект договора участия в долевом строительстве, корпус 11 08.12.2021326.21 кб, pdf
- Извещение о начале строительства, корпус 11 10.09.20201,022.22 кб, pdf
- Градостроительный план земельного участка, корпус 11 27.07.20203.84 мб, pdf
- Схема планировочной организации земельного участка, корпус 11 16.12.20191.43 мб, pdf
- Сведения об уплате застройщиком обязательных отчислений, корпус 11 29.11.2018155.58 кб, pdf
- Информация о выданных заключениях о соответствии застройщика и проектной декларации требованиям 214-ФЗ 50-001351 00455-18ИСХ/ЗОСТ, корпус 11 28.08.2018736.92 кб, pdf
- Разрешение на строительство RU50-15-11168-2018, корпус 11 30.06.2018299.01 кб, pdf
- Экспертиза проектной документации, корпус 11 19.06.201822.33 мб, pdf
- Разрешение на ввод RU50-15-21972-2022, корпус 3 01.08.2022140.00 кб, pdf
- Проектная декларация № 50-001351, корпус 3 29.07.2022895.57 кб, pdf
- Проект договора участия в долевом строительстве, корпус 3 08.12.2021326.21 кб, pdf
- Извещение о начале строительства, корпус 3 10.09.20201,022.22 кб, pdf
- Градостроительный план земельного участка, корпус 3 27.07.20203.84 мб, pdf
- Схема планировочной организации земельного участка, корпус 3 16.12.20191.43 мб, pdf
- Сведения об уплате застройщиком обязательных отчислений, корпус 3 29.11.2018155.58 кб, pdf
- Информация о выданных заключениях о соответствии застройщика и проектной декларации требованиям 214-ФЗ 50-001351 00455-18ИСХ/ЗОСТ, корпус 3 28.08.2018736.92 кб, pdf
- Разрешение на строительство RU50-15-11168-2018, корпус 3 30.06.2018299.01 кб, pdf
- Экспертиза проектной документации, корпус 3 19.06.201822.33 мб, pdf
- Разрешение на ввод RU50-15-21972-2022, корпус 4 01.08.2022140.00 кб, pdf
- Проектная декларация № 50-001351, корпус 4 29.07.2022895.57 кб, pdf
- Проект договора участия в долевом строительстве, корпус 4 08.12.2021326.21 кб, pdf
- Извещение о начале строительства, корпус 4 10.09.20201,022.22 кб, pdf
- Градостроительный план земельного участка, корпус 4 27.07.20203.84 мб, pdf
- Схема планировочной организации земельного участка, корпус 4 16.12.20191.43 мб, pdf
- Сведения об уплате застройщиком обязательных отчислений, корпус 4 29.11.2018155.58 кб, pdf
- Информация о выданных заключениях о соответствии застройщика и проектной декларации требованиям 214-ФЗ 50-001351 00455-18ИСХ/ЗОСТ, корпус 4 28.08.2018736.92 кб, pdf
- Разрешение на строительство RU50-15-11168-2018, корпус 4 30.06.2018299.01 кб, pdf
- Экспертиза проектной документации, корпус 4 19.06.201822.33 мб, pdf




















