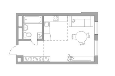
Квартира-студия, 28.6 м², ID 689467
Обновлено Сегодня, 16:58
6 141 757 ₽
214 747 ₽ / м2
Описание
Студия квартира, 28.6 м2 в ЖК Новая Алексеевская роща от
Продается квартира-студия в новостройке ЖК Новая Алексеевская роща по цене 6 141 757 ₽, расположенная по адресу Балашиха, ул Дмитриева. Строится компанией Гранель. Квартира сдается в 3 квартале 2027 года с черновой отделкой, в 13 минутах на машине от метро Щёлковская. Общая площадь квартиры - 28.6 кв. м. Этаж 10 из 17. ID квартиры на СтройкиРУ 689467, сообщите его когда будете звонить.
Подробнее о ЖК Новая Алексеевская роща
Особенности
Ход строительства
Документация
- Разрешение на ввод RU50-15-17357-2020, корпус 6.1 28.12.202070.83 кб, pdf
- Проектная декларация № 50-002324, корпус 6.1 09.12.2020471.23 кб, pdf
- Схема планировочной организации земельного участка, корпус 6.1 17.12.20191.72 мб, pdf
- Заключение о степени готовности RU50-15-133355-2019, корпус 6.1 10.10.2019957.96 кб, pdf
- Сведения об уплате застройщиком обязательных отчислений, корпус 6.1 06.06.2019145.53 кб, pdf
- Извещение о начале строительства, корпус 6.1 27.05.2019957.03 кб, pdf
- Проект договора участия в долевом строительстве, корпус 6.1 23.05.2019292.81 кб, pdf
- Информация о выданных заключениях о соответствии застройщика и проектной декларации требованиям 214-ФЗ 50-002324 00179-19ИСХ/ЗОСТ, корпус 6.1 22.05.2019747.61 кб, pdf
- Градостроительный план земельного участка, корпус 6.1 23.04.20191.95 мб, pdf
- Разрешение на строительство RU50-15-13355-2019, корпус 6.1 12.04.2019112.62 кб, pdf
- Экспертиза проектной документации, корпус 6.1 15.07.201812.62 мб, pdf
- Разрешение на ввод RU50-15-12446-2018, корпус 1 14.12.201869.98 кб, pdf
- Проектная декларация № 50-000708, корпус 1 02.11.2018134.52 кб, pdf
- Проект договора участия в долевом строительстве, корпус 1 29.06.20181.74 мб, pdf
- Информация о выданных заключениях о соответствии застройщика и проектной декларации требованиям 214-ФЗ 50-000708 10357/9.1, корпус 1 16.06.2017386.42 кб, pdf
- Разрешение на строительство RU50-01-8184-2017, корпус 1 22.05.2017113.52 кб, pdf
- Экспертиза проектной документации, корпус 1 13.04.20171.74 мб, pdf





























