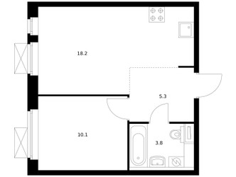
1-Комнатная квартира, 36.9 м², ID 625588
Обновлено 6 дня назад
11 207 000 ₽
303 713 ₽ / м2
- Срок сдачи
- III квартал 2028
- Застройщик
- нет данных
- Общая площадь
- 36.9 м2
- Высота потолков
- 2.62 м
- Этаж
- 6 из 25
- Корпус
- а 5.2 - 5.4
- Отделка
- не указана
- Санузел
- Раздельный
- ID
- 625588
Расположение
Описание
Однокомнатная квартира, 36.9 м2 в ЖК Зеленый парк от
Продается однокомнатная квартира в новостройке ЖК Зеленый парк по цене 11 207 000 р, расположенная по адресу Зеленоград, Зеленоград, Крюково, Георгиевский пр-кт, д 1. Застройщик дома «ПИК». Квартира сдается в III квартале 2028 года в 25 минутах на машине от метро Пятницкое шоссе. Общая площадь квартиры - 36.9 м². Этаж 6 из 28. ID квартиры на СтройкиРУ 625588, сообщите его когда будете звонить.
Подробнее о ЖК Зеленый парк
Особенности
Ход строительства
Документация
- Проектная декларация № 77-002408, корпус 2.4 14.06.20231.05 мб, pdf
- Градостроительный план земельного участка, корпус 2.4 06.04.202319.45 мб, pdf
- Проект договора участия в долевом строительстве, корпус 2.4 29.12.2022156.75 кб, pdf
- Схема планировочной организации земельного участка, корпус 2.4 21.04.20224.28 мб, pdf
- Экспертиза проектной документации, корпус 2.4 20.04.2022662.71 кб, pdf
- Извещение о начале строительства, корпус 2.4 18.02.20225.16 мб, pdf
- Разрешение на строительство 77-143000-020020-2022, корпус 2.4 03.02.20221.79 мб, pdf
- Проектная декларация № 77-002408, корпус 2.3 14.06.20231.05 мб, pdf
- Градостроительный план земельного участка, корпус 2.3 06.04.202319.45 мб, pdf
- Проект договора участия в долевом строительстве, корпус 2.3 29.12.2022156.75 кб, pdf
- Схема планировочной организации земельного участка, корпус 2.3 21.04.20224.28 мб, pdf
- Экспертиза проектной документации, корпус 2.3 20.04.2022662.71 кб, pdf
- Извещение о начале строительства, корпус 2.3 18.02.20225.16 мб, pdf
- Разрешение на строительство 77-143000-020020-2022, корпус 2.3 03.02.20221.79 мб, pdf
- Проектная декларация № 77-002408, корпус 2.2 14.06.20231.05 мб, pdf
- Градостроительный план земельного участка, корпус 2.2 06.04.202319.45 мб, pdf
- Проект договора участия в долевом строительстве, корпус 2.2 29.12.2022156.75 кб, pdf
- Схема планировочной организации земельного участка, корпус 2.2 21.04.20224.28 мб, pdf
- Экспертиза проектной документации, корпус 2.2 20.04.2022662.71 кб, pdf
- Извещение о начале строительства, корпус 2.2 18.02.20225.16 мб, pdf
- Разрешение на строительство 77-143000-020020-2022, корпус 2.2 03.02.20221.79 мб, pdf
- Проектная декларация № 77-002408, корпус 2.1 14.06.20231.05 мб, pdf
- Градостроительный план земельного участка, корпус 2.1 06.04.202319.45 мб, pdf
- Проект договора участия в долевом строительстве, корпус 2.1 29.12.2022156.75 кб, pdf
- Схема планировочной организации земельного участка, корпус 2.1 21.04.20224.28 мб, pdf
- Экспертиза проектной документации, корпус 2.1 20.04.2022662.71 кб, pdf
- Извещение о начале строительства, корпус 2.1 18.02.20225.16 мб, pdf
- Разрешение на строительство 77-143000-020020-2022, корпус 2.1 03.02.20221.79 мб, pdf
- Проектная декларация № 77-002360, корпус 1.4 14.06.20231.05 мб, pdf
- Градостроительный план земельного участка, корпус 1.4 06.04.202319.45 мб, pdf
- Проект договора участия в долевом строительстве, корпус 1.4 29.12.2022156.75 кб, pdf
- Извещение о начале строительства, корпус 1.4 15.12.20215.26 мб, pdf
- Разрешение на строительство 77-143000-019881-2021, корпус 1.4 01.12.20211.51 мб, pdf
- Схема планировочной организации земельного участка, корпус 1.4 30.11.202114.52 мб, pdf
- Экспертиза проектной документации, корпус 1.4 17.11.2021497.31 кб, pdf
- Проектная декларация № 77-002360, корпус 1.3 14.06.20231.05 мб, pdf
- Градостроительный план земельного участка, корпус 1.3 06.04.202319.45 мб, pdf
- Проект договора участия в долевом строительстве, корпус 1.3 29.12.2022156.75 кб, pdf
- Извещение о начале строительства, корпус 1.3 15.12.20215.26 мб, pdf
- Разрешение на строительство 77-143000-019881-2021, корпус 1.3 01.12.20211.51 мб, pdf
- Схема планировочной организации земельного участка, корпус 1.3 30.11.202114.52 мб, pdf
- Экспертиза проектной документации, корпус 1.3 17.11.2021497.31 кб, pdf
- Проектная декларация № 77-002360, корпус 1.2 14.06.20231.05 мб, pdf
- Градостроительный план земельного участка, корпус 1.2 06.04.202319.45 мб, pdf
- Проект договора участия в долевом строительстве, корпус 1.2 29.12.2022156.75 кб, pdf
- Извещение о начале строительства, корпус 1.2 15.12.20215.26 мб, pdf
- Разрешение на строительство 77-143000-019881-2021, корпус 1.2 01.12.20211.51 мб, pdf
- Схема планировочной организации земельного участка, корпус 1.2 30.11.202114.52 мб, pdf
- Экспертиза проектной документации, корпус 1.2 17.11.2021497.31 кб, pdf
- Проектная декларация № 77-002360, корпус 1.1 14.06.20231.05 мб, pdf
- Градостроительный план земельного участка, корпус 1.1 06.04.202319.45 мб, pdf
- Проект договора участия в долевом строительстве, корпус 1.1 29.12.2022156.75 кб, pdf
- Извещение о начале строительства, корпус 1.1 15.12.20215.26 мб, pdf
- Разрешение на строительство 77-143000-019881-2021, корпус 1.1 01.12.20211.51 мб, pdf
- Схема планировочной организации земельного участка, корпус 1.1 30.11.202114.52 мб, pdf
- Экспертиза проектной документации, корпус 1.1 17.11.2021497.31 кб, pdf
































