2-Комнатная квартира, 55.7 м², ID 561137
Обновлено Сегодня, 05:08
11 400 000 ₽
204 668 ₽ / м2
- Срок сдачи
- I квартал 2021
- Застройщик
- нет данных
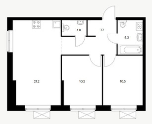
- Общая площадь
- 55.7 м2
- Жилая площадь
- 20.7 м2
- Площадь кухни
- 21.2 м2
- Высота потолков
- 2.68 м
- Этаж
- 17 из 25
- Корпус
- 1.27.2
- Отделка
- не указана
- Санузел
- Раздельный
- ID
- 561137
Описание
Двухкомнатная квартира, 55.7 м2 в ЖК Одинцово-1 от
Продается 2-комн. квартира в новостройке ЖК Одинцово-1 стоимостью 11 400 000 ₽, по адресу Одинцово, ул Каштановая, д 4. Строится компанией «ПИК». Квартира сдается в 1 квартале 2021 года в 30 минутах на машине от станции метро Славянский бульвар. Общая площадь квартиры - 55.7 кв. м. Этаж 17. ID квартиры на СтройкиРУ 561137, скажите его когда будете звонить.
Подробнее о ЖК Одинцово-1
Особенности
Ход строительства
Документация
- Проектная декларация № 50-000070, корпус 1.15 09.08.2019160.16 кб, pdf
- Схема планировочной организации земельного участка, корпус 1.15 01.11.20181.69 мб, pdf
- Градостроительный план земельного участка, корпус 1.15 01.11.20181.69 мб, pdf
- Разрешение на ввод RU50-20-10327-2018, корпус 1.15 15.03.201881.76 кб, pdf
- Проект договора участия в долевом строительстве, корпус 1.15 22.02.2018540.83 кб, pdf
- Разрешение на строительство RU50-19-5322-2016, корпус 1.15 01.07.20161.56 мб, pdf
- Экспертиза проектной документации, корпус 1.15 27.05.201611.32 мб, pdf
- Проектная декларация № 50-000045, корпус 1.9 12.08.2019358.51 кб, pdf
- Разрешение на ввод RU50-20-13617-2019, корпус 1.9 31.05.201983.12 кб, pdf
- Проект договора участия в долевом строительстве, корпус 1.9 22.01.2019180.53 кб, pdf
- Извещение о начале строительства, корпус 1.9 09.11.2018225.97 кб, pdf
- Градостроительный план земельного участка, корпус 1.9 22.10.20188.48 мб, pdf
- Схема планировочной организации земельного участка, корпус 1.9 22.10.20181.66 мб, pdf
- Разрешение на строительство RU50-55-8865-2017, корпус 1.9 17.08.2017160.93 кб, pdf
- Информация о выданных заключениях о соответствии застройщика и проектной декларации требованиям 214-ФЗ 50-000045 20-ИСХ-9592, корпус 1.9 06.06.201734.44 кб, pdf
- Экспертиза проектной документации, корпус 1.9 07.04.201715.81 мб, pdf
- Проектная декларация № 50-000047, корпус 1.8 12.08.2019458.76 кб, pdf
- Разрешение на ввод RU50-20-13617-2019, корпус 1.8 31.05.201983.12 кб, pdf
- Проект договора участия в долевом строительстве, корпус 1.8 22.01.2019370.39 кб, pdf
- Схема планировочной организации земельного участка, корпус 1.8 22.10.20181.66 мб, pdf
- Градостроительный план земельного участка, корпус 1.8 22.10.20188.48 мб, pdf
- Информация о выданных заключениях о соответствии застройщика и проектной декларации требованиям 214-ФЗ 50-000047 20-ИСХ-15350/9.1, корпус 1.8 30.08.201735.09 кб, pdf
- Разрешение на строительство RU50-55-8865-2017, корпус 1.8 17.08.2017160.93 кб, pdf
- Экспертиза проектной документации, корпус 1.8 07.04.201715.81 мб, pdf
- Проектная декларация № 50-000045, корпус 1.7 12.08.2019358.51 кб, pdf
- Разрешение на ввод RU50-20-13617-2019, корпус 1.7 31.05.201987.02 кб, pdf
- Проект договора участия в долевом строительстве, корпус 1.7 22.01.2019639.62 кб, pdf
- Схема планировочной организации земельного участка, корпус 1.7 22.10.20181.66 мб, pdf
- Градостроительный план земельного участка, корпус 1.7 22.10.20188.48 мб, pdf
- Разрешение на строительство RU50-55-8865-2017, корпус 1.7 17.08.2017160.93 кб, pdf
- Информация о выданных заключениях о соответствии застройщика и проектной декларации требованиям 214-ФЗ 50-000045 20-ИСХ-9592, корпус 1.7 06.06.201734.44 кб, pdf
- Экспертиза проектной документации, корпус 1.7 07.04.201715.81 мб, pdf
- Разрешение на ввод RU50-20-14352-2019, корпус 1.3 24.09.201982.59 кб, pdf
- Проектная декларация № 50-000065, корпус 1.3 07.08.2019625.70 кб, pdf
- Извещение о начале строительства, корпус 1.3 19.07.20191.27 мб, pdf
- Заключение о степени готовности RU50-55-9044-2017, корпус 1.3 28.06.20191.09 мб, pdf
- Проект договора участия в долевом строительстве, корпус 1.3 22.01.2019416.09 кб, pdf
- Схема планировочной организации земельного участка, корпус 1.3 22.10.20181.66 мб, pdf
- Градостроительный план земельного участка, корпус 1.3 22.10.20188.48 мб, pdf
- Разрешение на строительство RU50-55-9044-2017, корпус 1.3 07.09.2017156.21 кб, pdf
- Экспертиза проектной документации, корпус 1.3 10.05.20172.17 мб, pdf
- Разрешение на ввод RU50-20-14352-2019, корпус 1.2 24.09.201982.59 кб, pdf
- Проектная декларация № 50-000065, корпус 1.2 07.08.2019625.70 кб, pdf
- Извещение о начале строительства, корпус 1.2 19.07.20191.27 мб, pdf
- Проект договора участия в долевом строительстве, корпус 1.2 18.07.2019255.99 кб, pdf
- Заключение о степени готовности RU50-55-9044-2017, корпус 1.2 28.06.20191.09 мб, pdf
- Схема планировочной организации земельного участка, корпус 1.2 22.10.20181.66 мб, pdf
- Градостроительный план земельного участка, корпус 1.2 22.10.20188.48 мб, pdf
- Разрешение на строительство RU50-55-9044-2017, корпус 1.2 07.09.2017156.21 кб, pdf
- Экспертиза проектной документации, корпус 1.2 10.05.20172.17 мб, pdf
- Проектная декларация № 50-000047, корпус 1.10 12.08.2019458.76 кб, pdf
- Разрешение на ввод RU50-20-13617-2019, корпус 1.10 31.05.201987.02 кб, pdf
- Проект договора участия в долевом строительстве, корпус 1.10 22.01.2019259.50 кб, pdf
- Извещение о начале строительства, корпус 1.10 09.11.2018225.97 кб, pdf
- Градостроительный план земельного участка, корпус 1.10 22.10.20188.48 мб, pdf
- Схема планировочной организации земельного участка, корпус 1.10 22.10.20181.66 мб, pdf
- Информация о выданных заключениях о соответствии застройщика и проектной декларации требованиям 214-ФЗ 50-000047 20-ИСХ-15350/9.1, корпус 1.10 30.08.201735.09 кб, pdf
- Разрешение на строительство RU50-55-8865-2017, корпус 1.10 17.08.2017160.93 кб, pdf
- Экспертиза проектной документации, корпус 1.10 07.04.201715.81 мб, pdf
- Сведения об уплате застройщиком обязательных отчислений, корпус 1.20 13.12.20197.16 мб, pdf
- Информация о выданных заключениях о соответствии застройщика и проектной декларации требованиям 214-ФЗ 50-001297 00204-18ИСХ/ЗОСТ, корпус 1.20 19.06.2018741.07 кб, pdf
- Сведения об уплате застройщиком обязательных отчислений, корпус 1.5 13.12.20197.16 мб, pdf
- Информация о выданных заключениях о соответствии застройщика и проектной декларации требованиям 214-ФЗ 50-001297 00204-18ИСХ/ЗОСТ, корпус 1.5 19.06.2018741.07 кб, pdf
- Сведения об уплате застройщиком обязательных отчислений, корпус 1.4 13.12.20197.16 мб, pdf
- Разрешение на ввод RU50-20-14352-2019, корпус 1.4 24.09.201982.59 кб, pdf
- Проектная декларация № 50-000065, корпус 1.4 07.08.2019625.70 кб, pdf
- Извещение о начале строительства, корпус 1.4 19.07.20191.27 мб, pdf
- Заключение о степени готовности RU50-55-9044-2017, корпус 1.4 28.06.20191.09 мб, pdf
- Проект договора участия в долевом строительстве, корпус 1.4 22.01.2019376.33 кб, pdf
- Градостроительный план земельного участка, корпус 1.4 22.10.20188.48 мб, pdf
- Схема планировочной организации земельного участка, корпус 1.4 22.10.20181.66 мб, pdf
- Информация о выданных заключениях о соответствии застройщика и проектной декларации требованиям 214-ФЗ 50-001297 00204-18ИСХ/ЗОСТ, корпус 1.4 19.06.2018741.07 кб, pdf
- Разрешение на строительство RU50-55-9044-2017, корпус 1.4 07.09.2017156.21 кб, pdf
- Экспертиза проектной документации, корпус 1.4 10.05.20172.17 мб, pdf
- Сведения об уплате застройщиком обязательных отчислений, корпус 1.18.2 13.12.20197.16 мб, pdf
- Информация о выданных заключениях о соответствии застройщика и проектной декларации требованиям 214-ФЗ 50-001297 00204-18ИСХ/ЗОСТ, корпус 1.18.2 19.06.2018741.07 кб, pdf
- Сведения об уплате застройщиком обязательных отчислений, корпус 1.18.1 13.12.20197.16 мб, pdf
- Информация о выданных заключениях о соответствии застройщика и проектной декларации требованиям 214-ФЗ 50-001297 00204-18ИСХ/ЗОСТ, корпус 1.18.1 19.06.2018741.07 кб, pdf
- Сведения об уплате застройщиком обязательных отчислений, корпус 1.21 13.12.20197.16 мб, pdf
- Информация о выданных заключениях о соответствии застройщика и проектной декларации требованиям 214-ФЗ 50-001297 00204-18ИСХ/ЗОСТ, корпус 1.21 19.06.2018741.07 кб, pdf
- Сведения об уплате застройщиком обязательных отчислений, корпус 1.1 13.12.20197.16 мб, pdf
- Разрешение на ввод RU50-20-14352-2019, корпус 1.1 24.09.201982.59 кб, pdf
- Проектная декларация № 50-000065, корпус 1.1 07.08.2019625.70 кб, pdf
- Извещение о начале строительства, корпус 1.1 19.07.20191.27 мб, pdf
- Заключение о степени готовности RU50-55-9044-2017, корпус 1.1 28.06.20191.09 мб, pdf
- Схема планировочной организации земельного участка, корпус 1.1 22.10.20181.66 мб, pdf
- Градостроительный план земельного участка, корпус 1.1 22.10.20188.48 мб, pdf
- Информация о выданных заключениях о соответствии застройщика и проектной декларации требованиям 214-ФЗ 50-001297 00204-18ИСХ/ЗОСТ, корпус 1.1 19.06.2018741.07 кб, pdf
- Разрешение на строительство RU50-55-9044-2017, корпус 1.1 07.09.2017156.21 кб, pdf
- Экспертиза проектной документации, корпус 1.1 10.05.20172.17 мб, pdf
- Сведения об уплате застройщиком обязательных отчислений, корпус 1.19.1 13.12.20197.16 мб, pdf
- Информация о выданных заключениях о соответствии застройщика и проектной декларации требованиям 214-ФЗ 50-001297 00204-18ИСХ/ЗОСТ, корпус 1.19.1 19.06.2018741.07 кб, pdf
- Сведения об уплате застройщиком обязательных отчислений, корпус 1.22 13.12.20197.16 мб, pdf
- Информация о выданных заключениях о соответствии застройщика и проектной декларации требованиям 214-ФЗ 50-001297 00204-18ИСХ/ЗОСТ, корпус 1.22 19.06.2018741.07 кб, pdf
- Сведения об уплате застройщиком обязательных отчислений, корпус 1.19.2 13.12.20197.16 мб, pdf
- Информация о выданных заключениях о соответствии застройщика и проектной декларации требованиям 214-ФЗ 50-001297 00204-18ИСХ/ЗОСТ, корпус 1.19.2 19.06.2018741.07 кб, pdf
- Сведения об уплате застройщиком обязательных отчислений, корпус Корпус 1.18.1 13.12.20197.16 мб, pdf
- Информация о выданных заключениях о соответствии застройщика и проектной декларации требованиям 214-ФЗ 50-001297 00204-18ИСХ/ЗОСТ, корпус Корпус 1.18.1 19.06.2018741.07 кб, pdf
- Сведения об уплате застройщиком обязательных отчислений, корпус Корпус 1.18.2 13.12.20197.16 мб, pdf
- Информация о выданных заключениях о соответствии застройщика и проектной декларации требованиям 214-ФЗ 50-001297 00204-18ИСХ/ЗОСТ, корпус Корпус 1.18.2 19.06.2018741.07 кб, pdf
- Сведения об уплате застройщиком обязательных отчислений, корпус Корпус 1.22 13.12.20197.16 мб, pdf
- Информация о выданных заключениях о соответствии застройщика и проектной декларации требованиям 214-ФЗ 50-001297 00204-18ИСХ/ЗОСТ, корпус Корпус 1.22 19.06.2018741.07 кб, pdf
- Сведения об уплате застройщиком обязательных отчислений, корпус Корпус 1.19.2 13.12.20197.16 мб, pdf
- Информация о выданных заключениях о соответствии застройщика и проектной декларации требованиям 214-ФЗ 50-001297 00204-18ИСХ/ЗОСТ, корпус Корпус 1.19.2 19.06.2018741.07 кб, pdf
- Сведения об уплате застройщиком обязательных отчислений, корпус Корпус 1.19.1 13.12.20197.16 мб, pdf
- Информация о выданных заключениях о соответствии застройщика и проектной декларации требованиям 214-ФЗ 50-001297 00204-18ИСХ/ЗОСТ, корпус Корпус 1.19.1 19.06.2018741.07 кб, pdf
- Сведения об уплате застройщиком обязательных отчислений, корпус Корпус 1.11 13.12.20197.16 мб, pdf
- Информация о выданных заключениях о соответствии застройщика и проектной декларации требованиям 214-ФЗ 50-001297 00204-18ИСХ/ЗОСТ, корпус Корпус 1.11 19.06.2018741.07 кб, pdf

























































