4+ Комнатная квартира, 139.98 м², ID 574450
Обновлено вчера
31 533 000 ₽
225 268 ₽ / м2
- Срок сдачи
- III квартал 2028
- Застройщик
- нет данных
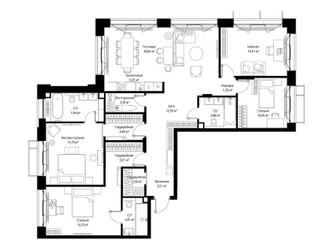
- Общая площадь
- 139.98 м2
- Жилая площадь
- 57.38 м2
- Площадь кухни
- 33.07 м2
- Высота потолков
- 3.13 м
- Этаж
- 8 из 12
- Корпус
- 1
- Отделка
- не указана
- Санузел
- Раздельный, Несколько
- ID
- 574450
Описание
4+ Комнатная квартира, 139.98 м2 в Архитектурный проект Мыс от
Продается 4+ комнатная квартира в новостройке Архитектурный проект Мыс по цене 31 533 000 рублей, расположенная по адресу Одинцово, Минское шоссе. Компания застройщик MR Group. Квартира сдается в III квартале 2028 года в 24 минутах на машине от метро Пыхтино. Общая площадь квартиры - 139.98 м². Этаж 8 из 12. ID квартиры на СтройкиРУ 574450, сообщите его когда будете звонить.



















