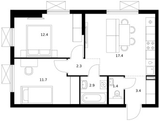
2-Комнатная квартира, 51.5 м², ID 630568
Обновлено 2 месяца назад

17 361 000 ₽
337 107 ₽ / м2
- Срок сдачи
- III квартал 2026
- Застройщик
- нет данных
- Общая площадь
- 51.5 м2
- Жилая площадь
- 24.1 м2
- Высота потолков
- 2.62 м
- Этаж
- 6 из 25
- Корпус
- 5
- Отделка
- Чистовая
- Санузел
- Раздельный
- ID
- 630568
Описание
Двухкомнатная квартира, 51.5 м2 в ЖК Яуза Парк (Мытищи) от
Продается двухкомнатная квартира в новостройке ЖК Яуза Парк (Мытищи) стоимостью 17 361 000 рублей, по адресу Мытищи, ул Колонцова. Компания застройщик «ПИК». Квартира сдается в III квартале 2026 года с чистовой отделкой, в 20 минутах на машине от станции метро Медведково. Общая площадь квартиры - 51.5 м². Этаж 6. ID квартиры на СтройкиРУ 630568, скажите его когда будете звонить.
Подробнее о ЖК Яуза Парк (Мытищи)
Особенности
Ход строительства
Документация
- Проектная декларация № 50-003798, корпус 4 02.06.20231.31 мб, pdf
- Извещение о начале строительства, корпус 4 02.06.202345.49 кб, pdf
- Проект договора участия в долевом строительстве, корпус 4 26.05.2023175.34 кб, pdf
- Разрешение на строительство RU50-12-24024-2023, корпус 4 23.05.2023179.35 кб, pdf
- Экспертиза проектной документации, корпус 4 16.05.2023344.23 кб, pdf
- Градостроительный план земельного участка, корпус 4 27.04.20233.50 мб, pdf
- Схема планировочной организации земельного участка, корпус 4 10.04.20234.05 мб, pdf
- Извещение о начале строительства, корпус 3 02.06.202345.49 кб, pdf
- Проектная декларация № 50-003798, корпус 3 02.06.20231.31 мб, pdf
- Проект договора участия в долевом строительстве, корпус 3 26.05.2023175.34 кб, pdf
- Разрешение на строительство RU50-12-24024-2023, корпус 3 23.05.2023179.35 кб, pdf
- Экспертиза проектной документации, корпус 3 16.05.2023344.23 кб, pdf
- Градостроительный план земельного участка, корпус 3 27.04.20233.50 мб, pdf
- Схема планировочной организации земельного участка, корпус 3 10.04.20234.05 мб, pdf
- Проектная декларация № 50-003798, корпус 2 02.06.20231.31 мб, pdf
- Извещение о начале строительства, корпус 2 02.06.202345.49 кб, pdf
- Проект договора участия в долевом строительстве, корпус 2 26.05.2023175.34 кб, pdf
- Разрешение на строительство RU50-12-24024-2023, корпус 2 23.05.2023179.35 кб, pdf
- Экспертиза проектной документации, корпус 2 16.05.2023344.23 кб, pdf
- Градостроительный план земельного участка, корпус 2 27.04.20233.50 мб, pdf
- Схема планировочной организации земельного участка, корпус 2 10.04.20234.05 мб, pdf
- Проектная декларация № 50-003798, корпус 1 02.06.20231.31 мб, pdf
- Извещение о начале строительства, корпус 1 02.06.202345.49 кб, pdf
- Проект договора участия в долевом строительстве, корпус 1 26.05.2023175.34 кб, pdf
- Разрешение на строительство RU50-12-24024-2023, корпус 1 23.05.2023179.35 кб, pdf
- Экспертиза проектной документации, корпус 1 16.05.2023344.23 кб, pdf
- Градостроительный план земельного участка, корпус 1 27.04.20233.50 мб, pdf
- Схема планировочной организации земельного участка, корпус 1 10.04.20234.05 мб, pdf




















