1-Комнатная квартира, 36.9 м², ID 633362
Обновлено Вчера, 16:03
8 724 000 ₽
236 423 ₽ / м2
- Срок сдачи
- IV квартал 2025
- Застройщик
- нет данных
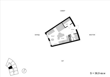
- Общая площадь
- 36.9 м2
- Этаж
- 8 из 17
- Корпус
- 1
- Отделка
- не указана
- ID
- 633362
Описание
Однокомнатная квартира, 36.9 м2 в ЖК Мытищи Сити от
Продается однокомнатная квартира в новостройке ЖК Мытищи Сити стоимостью 8 724 000 рублей, по адресу Мытищи, ул Пионерская. Компания застройщик Ломоносов Девелопмент. Квартира сдается в IV квартале 2025 года в 9 минутах на машине от станции метро Бабушкинская. Общая площадь квартиры - 36.9 м². Этаж 8. ID квартиры на СтройкиРУ 633362, скажите его когда будете звонить.












