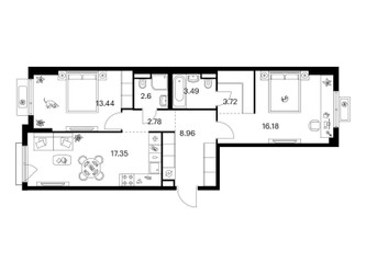
2-Комнатная квартира, 68.52 м², ID 651586
Обновлено Вчера, 05:05
1 из 23
16 349 000 ₽
238 602 ₽ / м2
- Срок сдачи
- III квартал 2027
- Застройщик
- нет данных
- Общая площадь
- 68.52 м2
- Жилая площадь
- 29.62 м2
- Площадь кухни
- 17.35 м2
- Высота потолков
- 2.65 м
- Этаж
- 8 из 9
- Корпус
- 4.1
- Отделка
- не указана
- Санузел
- Раздельный
- ID
- 651586
Описание
Двухкомнатная квартира, 68.52 м2 в ЖК Ильинские луга от
Продается 2-комн. квартира в новостройке ЖК Ильинские луга по цене 16 349 000 ₽, расположенная по адресу Красногорск, поселок Ильинское-Усово, ул Заповедная, д 1-5. Строится компанией «ПИК». Квартира сдается в 3 квартале 2027 года в 20 минутах на машине от метро Тушинская. Общая площадь квартиры - 68.52 кв. м. Этаж 8. ID квартиры на СтройкиРУ 651586, сообщите его когда будете звонить.
Подробнее о ЖК Ильинские луга
“Ильинские луга” - жилой комплекс от застройщика “ПИК” рядом с поселком Ильинское-Усово, который находится в 10 километрах от МКАД по Новорижскому шоссе.
Жилой комплекс представляет собой постройки в 9 этажей, поэтому в квартирах и во дворах будет очень много света. Застройщик предлагает на выбор варианты от студий до трехкомнатных квартир, купить квартиру можно с готовой отделкой.
Инфраструктура и благоустройство
Транспортное сообщение позволяет выехать на Новорижское шоссе и оперативно добраться до пункта назначения
На территории жилого комплекса широкий пешеходный бульвар с озеленением вокруг, где можно прогуливаться, кататься на велосипеде, заниматься спортом
В жилом комплексе “Ильинские луга” три детских сада и собственная школа на 1500 мест
В комплексе определена медленная зона для электросамокатов. С 7:00 до 00:00 при въезде на территорию квартала скорость электросамокатов не превышает 15 км/ч
Для удобства жителей купить продукты или поесть можно на первых этажах домов, где расположены магазины и кафе
Комплексы застройщика “ПИК” построены так, чтобы всем было удобно перемещаться по территории квартала, поэтому убраны ступеньки, пороги и пандусы на всей территории
Рядом с “Ильинскими лугами” три парка. За 10–15 минут можно доехать до музея-усадьбы “Архангельское”, заповедника “Лохин остров” и Москвы-реки.
Страница ЖК >>
Особенности
Ход строительства
Документация
- Проектная декларация № 50-000756, корпус 40 09.08.201989.99 кб, pdf
- Проект договора участия в долевом строительстве, корпус 40 24.12.2018199.87 кб, pdf
- Разрешение на ввод RU50-11-12534-2018, корпус 40 21.12.201869.82 кб, pdf
- Схема планировочной организации земельного участка, корпус 40 01.11.20183.16 мб, pdf
- Градостроительный план земельного участка, корпус 40 01.11.20185.72 мб, pdf
- Разрешение на строительство RU50-10- 5053-2016, корпус 40 02.06.20162.85 мб, pdf
- Экспертиза проектной документации, корпус 40 24.05.20167.23 мб, pdf
- Проектная декларация № 91-000085, корпус 37 06.07.2020344.53 кб, pdf
- Сведения о государственной регистрации права собственности в отношении объекта долевого строительства, корпус 37 27.05.20201.17 мб, pdf
- Разрешение на ввод 91-RU93308000-010970-2020, корпус 37 07.04.20202.29 мб, pdf
- Схема планировочной организации земельного участка, корпус 37 19.09.20193.35 мб, pdf
- Градостроительный план земельного участка, корпус 37 19.09.20198.63 мб, pdf
- Извещение о начале строительства, корпус 37 29.07.2019660.13 кб, pdf
- Сведения об уплате застройщиком обязательных отчислений, корпус 37 25.04.2019563.41 кб, pdf
- Проект договора участия в долевом строительстве, корпус 37 29.11.2018414.99 кб, pdf
- Информация о выданных заключениях о соответствии застройщика и проектной декларации требованиям 214-ФЗ 91-000085 04.1-28/3, корпус 37 16.03.2017221.10 кб, pdf
- Разрешение на строительство РК 11516010970, корпус 37 09.12.2016353.56 кб, pdf
- Экспертиза проектной документации, корпус 37 26.08.20163.87 мб, pdf
- Проектная декларация № 50-000118, корпус 36 09.08.201992.33 кб, pdf
- Разрешение на ввод RU50-11-12684-2018, корпус 36 29.12.201870.22 кб, pdf
- Схема планировочной организации земельного участка, корпус 36 01.11.201813.07 мб, pdf
- Извещение о начале строительства, корпус 36 01.11.2018342.72 кб, pdf
- Градостроительный план земельного участка, корпус 36 01.11.20185.77 мб, pdf
- Проект договора участия в долевом строительстве, корпус 36 05.03.2018156.06 кб, pdf
- Разрешение на строительство RU50-47-8042-2017, корпус 36 03.05.2017112.24 кб, pdf
- Экспертиза проектной документации, корпус 36 01.03.201712.02 мб, pdf
- Проектная декларация № 50-000758, корпус 39 09.08.201990.24 кб, pdf
- Проект договора участия в долевом строительстве, корпус 39 24.12.2018199.86 кб, pdf
- Разрешение на ввод RU50-11-12535-2018, корпус 39 21.12.201869.85 кб, pdf
- Градостроительный план земельного участка, корпус 39 01.11.20185.72 мб, pdf
- Схема планировочной организации земельного участка, корпус 39 01.11.20182.03 мб, pdf
- Разрешение на строительство RU50-10- 5052-2016, корпус 39 02.06.20162.78 мб, pdf
- Экспертиза проектной документации, корпус 39 24.05.201613.68 мб, pdf
- Проектная декларация № 50-001391, корпус 44 06.07.2020621.24 кб, pdf
- Разрешение на ввод RU50-11-16072-2020, корпус 44 30.06.202069.27 кб, pdf
- Сведения об уплате застройщиком обязательных отчислений, корпус 44 02.12.20197.40 мб, pdf
- Заключение о степени готовности RU50-11-10895-2018, корпус 44 24.06.20192.85 мб, pdf
- Градостроительный план земельного участка, корпус 44 01.11.20185.72 мб, pdf
- Извещение о начале строительства, корпус 44 01.11.20181.58 мб, pdf
- Схема планировочной организации земельного участка, корпус 44 01.11.20185.77 мб, pdf
- Проект договора участия в долевом строительстве, корпус 44 13.09.2018215.37 кб, pdf
- Информация о выданных заключениях о соответствии застройщика и проектной декларации требованиям 214-ФЗ 50-001391 00259-18ИСХ/ЗОСТ, корпус 44 04.07.2018740.24 кб, pdf
- Разрешение на строительство RU50-11-10895-2018, корпус 44 15.06.2018220.74 кб, pdf
- Экспертиза проектной документации, корпус 44 15.08.201723.64 мб, pdf
- Разрешение на ввод RU50-11-17876-2021, корпус 43 01.04.202168.71 кб, pdf
- Проектная декларация № 50-001390, корпус 43 02.03.2021663.06 кб, pdf
- Извещение о начале строительства, корпус 43 23.07.20191.59 мб, pdf
- Заключение о степени готовности RU50-11-10960-2018, корпус 43 24.06.20192.87 мб, pdf
- Проект договора участия в долевом строительстве, корпус 43 29.04.2019393.81 кб, pdf
- Градостроительный план земельного участка, корпус 43 01.11.20185.72 мб, pdf
- Схема планировочной организации земельного участка, корпус 43 01.11.20183.87 мб, pdf
- Сведения об уплате застройщиком обязательных отчислений, корпус 43 01.11.20187.17 мб, pdf
- Информация о выданных заключениях о соответствии застройщика и проектной декларации требованиям 214-ФЗ 50-001390 00258-18ИСХ/ЗОСТ, корпус 43 04.07.2018740.24 кб, pdf
- Разрешение на строительство RU50-11-10960-2018, корпус 43 15.06.201881.32 кб, pdf
- Экспертиза проектной документации, корпус 43 20.12.201721.20 мб, pdf
- Проектная декларация № 50-001389, корпус 41 05.02.2020396.69 кб, pdf
- Разрешение на ввод RU50-11-15215-2020, корпус 41 23.01.202069.07 кб, pdf
- Сведения об уплате застройщиком обязательных отчислений, корпус 41 02.12.20197.47 мб, pdf
- Заключение о степени готовности RU50-11-10959-2018, корпус 41 24.06.20192.86 мб, pdf
- Извещение о начале строительства, корпус 41 01.11.20181.57 мб, pdf
- Схема планировочной организации земельного участка, корпус 41 01.11.20181.95 мб, pdf
- Градостроительный план земельного участка, корпус 41 01.11.20185.72 мб, pdf
- Проект договора участия в долевом строительстве, корпус 41 13.09.2018600.43 кб, pdf
- Информация о выданных заключениях о соответствии застройщика и проектной декларации требованиям 214-ФЗ 50-001389 00260-18ИСХ/ЗОСТ, корпус 41 04.07.2018740.24 кб, pdf
- Разрешение на строительство RU50-11-10959-2018, корпус 41 15.06.201880.71 кб, pdf
- Экспертиза проектной документации, корпус 41 10.05.201828.47 мб, pdf
- Разрешение на ввод RU50-11-17516-2021 , корпус 35 22.01.202168.91 кб, pdf
- Проектная декларация № 50-001388, корпус 35 04.01.2021651.15 кб, pdf
- Сведения об уплате застройщиком обязательных отчислений, корпус 35 02.12.20197.10 мб, pdf
- Извещение о начале строительства, корпус 35 23.07.20191.61 мб, pdf
- Заключение о степени готовности RU50-11-10894-2018, корпус 35 24.06.20192.87 мб, pdf
- Схема планировочной организации земельного участка, корпус 35 01.11.20184.13 мб, pdf
- Градостроительный план земельного участка, корпус 35 01.11.20185.77 мб, pdf
- Проект договора участия в долевом строительстве, корпус 35 02.08.2018193.13 кб, pdf
- Информация о выданных заключениях о соответствии застройщика и проектной декларации требованиям 214-ФЗ 50-001388 00261-18ИСХ/ЗОСТ, корпус 35 04.07.2018740.25 кб, pdf
- Разрешение на строительство RU50-11-10894-2018, корпус 35 15.06.201880.37 кб, pdf
- Экспертиза проектной документации, корпус 35 23.04.201830.78 мб, pdf
- Проектная декларация № 50-003551, корпус 10 05.06.2023857.04 кб, pdf
- Проект договора участия в долевом строительстве, корпус 10 29.12.2022195.01 кб, pdf
- Извещение о начале строительства, корпус 10 05.08.2022279.63 кб, pdf
- Схема планировочной организации земельного участка, корпус 10 22.07.20221.36 мб, pdf
- Разрешение на строительство RU50-11-21765-2022, корпус 10 23.06.2022195.39 кб, pdf
- Экспертиза проектной документации, корпус 10 09.06.2022347.84 кб, pdf
- Градостроительный план земельного участка, корпус 10 26.01.2022859.18 кб, pdf
- Проектная декларация № 50-003342, корпус 8 05.06.2023929.29 кб, pdf
- Проект договора участия в долевом строительстве, корпус 8 29.12.2022195.01 кб, pdf
- Извещение о начале строительства, корпус 8 29.12.2021343.63 кб, pdf
- Схема планировочной организации земельного участка, корпус 8 29.12.20211.13 мб, pdf
- Разрешение на строительство RU50-11-20420-2021, корпус 8 28.12.2021123.18 кб, pdf
- Градостроительный план земельного участка, корпус 8 15.11.2021616.83 кб, pdf
- Экспертиза проектной документации, корпус 8 20.09.202124.95 мб, pdf
- Проектная декларация № 50-003349, корпус 15 05.06.2023923.87 кб, pdf
- Проект договора участия в долевом строительстве, корпус 15 29.12.2022195.01 кб, pdf
- Извещение о начале строительства, корпус 15 01.03.2022630.16 кб, pdf
- Схема планировочной организации земельного участка, корпус 15 10.01.20221.69 мб, pdf
- Градостроительный план земельного участка, корпус 15 10.01.2022859.18 кб, pdf
- Разрешение на строительство RU50-11-20353-2021, корпус 15 24.12.2021122.42 кб, pdf
- Экспертиза проектной документации, корпус 15 14.10.2021348.42 кб, pdf
- Разрешение на ввод RU50-11-17516-2021 , корпус 15 22.01.202168.91 кб, pdf
- Сведения об уплате застройщиком обязательных отчислений, корпус 15 02.12.20197.10 мб, pdf
- Заключение о степени готовности RU50-11-10894-2018, корпус 15 24.06.20192.87 мб, pdf
- Информация о выданных заключениях о соответствии застройщика и проектной декларации требованиям 214-ФЗ 50-001388 00261-18ИСХ/ЗОСТ, корпус 15 04.07.2018740.25 кб, pdf
- Разрешение на ввод RU50-11-23109-2022, корпус 16 30.12.2022106.66 кб, pdf
- Проект договора участия в долевом строительстве, корпус 16 29.12.2022171.28 кб, pdf
- Проектная декларация № 50-002264, корпус 16 28.12.2022909.72 кб, pdf
- Экспертиза проектной документации, корпус 16 14.10.20221.32 мб, pdf
- Схема планировочной организации земельного участка, корпус 16 23.08.20221.25 мб, pdf
- Градостроительный план земельного участка, корпус 16 05.07.2021859.18 кб, pdf
- Извещение о начале строительства, корпус 16 17.02.2021568.63 кб, pdf
- Сведения об уплате застройщиком обязательных отчислений, корпус 16 02.12.20194.22 мб, pdf
- Заключение о степени готовности RU50-11-10962-2018 , корпус 16 08.07.2019972.83 кб, pdf
- Информация о выданных заключениях о соответствии застройщика и проектной декларации требованиям 214-ФЗ 50-002264 00148-19ИСХ/ЗОСТ, корпус 16 30.04.2019743.37 кб, pdf
- Разрешение на строительство RU50-11-10962-2018, корпус 16 15.06.2018826.93 кб, pdf
- Разрешение на ввод RU50-11-23983-2023, корпус 6 19.05.2023104.11 кб, pdf
- Проектная декларация № 50-003250, корпус 6 03.05.2023840.37 кб, pdf
- Проект договора участия в долевом строительстве, корпус 6 29.12.2022195.01 кб, pdf
- Извещение о начале строительства, корпус 6 24.09.2021540.01 кб, pdf
- Схема планировочной организации земельного участка, корпус 6 21.09.20211.20 мб, pdf
- Градостроительный план земельного участка, корпус 6 10.09.2021688.18 кб, pdf
- Разрешение на строительство RU50-11-19300-2021, корпус 6 01.09.2021122.75 кб, pdf
- Экспертиза проектной документации, корпус 6 28.07.202122.84 мб, pdf
- Разрешение на ввод RU50-11-23847-2023, корпус 11 27.04.2023101.14 кб, pdf
- Проектная декларация № 50-003252, корпус 11 04.04.2023907.64 кб, pdf
- Проект договора участия в долевом строительстве, корпус 11 29.12.2022195.01 кб, pdf
- Схема планировочной организации земельного участка, корпус 11 01.09.20222.01 мб, pdf
- Извещение о начале строительства, корпус 11 27.09.2021329.55 кб, pdf
- Градостроительный план земельного участка, корпус 11 10.09.2021688.18 кб, pdf
- Разрешение на строительство RU50-11-19317-2021, корпус 11 02.09.2021122.36 кб, pdf
- Экспертиза проектной документации, корпус 11 27.07.202123.46 мб, pdf
- Разрешение на ввод RU50-11-22437-2022, корпус 12 11.10.2022341.70 кб, pdf
- Проектная декларация № 50-002253, корпус 12 05.10.2022869.22 кб, pdf
- Схема планировочной организации земельного участка, корпус 12 19.08.20221.28 мб, pdf
- Экспертиза проектной документации, корпус 12 18.08.2022329.16 кб, pdf
- Проект договора участия в долевом строительстве, корпус 12 12.08.2022286.70 кб, pdf
- Градостроительный план земельного участка, корпус 12 05.07.2021688.18 кб, pdf
- Извещение о начале строительства, корпус 12 17.02.2021556.60 кб, pdf
- Сведения об уплате застройщиком обязательных отчислений, корпус 12 02.12.20194.42 мб, pdf
- Заключение о степени готовности RU50-11-10893-2018, корпус 12 08.07.2019979.24 кб, pdf
- Информация о выданных заключениях о соответствии застройщика и проектной декларации требованиям 214-ФЗ 50-002253 00145-19ИСХ/ЗОСТ, корпус 12 30.04.2019743.34 кб, pdf
- Разрешение на строительство RU50-11-10893-2018, корпус 12 15.06.2018374.21 кб, pdf
- Разрешение на ввод RU50-11-24252-2023, корпус 14 21.06.2023102.26 кб, pdf
- Проектная декларация № 50-002263, корпус 14 05.06.2023942.20 кб, pdf
- Экспертиза проектной документации, корпус 14 24.03.2023567.82 кб, pdf
- Проект договора участия в долевом строительстве, корпус 14 29.12.2022171.28 кб, pdf
- Извещение о начале строительства, корпус 14 21.09.2021544.25 кб, pdf
- Схема планировочной организации земельного участка, корпус 14 20.07.20212.76 мб, pdf
- Градостроительный план земельного участка, корпус 14 20.07.2021616.83 кб, pdf
- Сведения об уплате застройщиком обязательных отчислений, корпус 14 02.12.20193.86 мб, pdf
- Заключение о степени готовности RU50-11-10940-2018, корпус 14 08.07.2019970.20 кб, pdf
- Информация о выданных заключениях о соответствии застройщика и проектной декларации требованиям 214-ФЗ 50-002263 00146-19ИСХ/ЗОСТ, корпус 14 30.04.2019743.36 кб, pdf
- Разрешение на строительство RU50-11-10940-2018, корпус 14 15.06.2018209.05 кб, pdf
- Разрешение на ввод RU50-11-24251-2023, корпус 13 21.06.2023123.28 кб, pdf
- Проектная декларация № 50-002447, корпус 13 05.06.2023943.49 кб, pdf
- Экспертиза проектной документации, корпус 13 30.03.2023529.81 кб, pdf
- Проект договора участия в долевом строительстве, корпус 13 29.12.2022175.87 кб, pdf
- Извещение о начале строительства, корпус 13 04.10.2021528.43 кб, pdf
- Градостроительный план земельного участка, корпус 13 23.08.2021616.83 кб, pdf
- Схема планировочной организации земельного участка, корпус 13 23.08.20211.23 мб, pdf
- Сведения об уплате застройщиком обязательных отчислений, корпус 13 02.12.20194.56 мб, pdf
- Заключение о степени готовности RU50-11-10900-2018, корпус 13 09.07.20191.82 мб, pdf
- Информация о выданных заключениях о соответствии застройщика и проектной декларации требованиям 214-ФЗ 50-002447 00232-19ИСХ/ЗОСТ, корпус 13 21.06.2019743.35 кб, pdf
- Разрешение на строительство RU50-11-10900-2018, корпус 13 15.06.2018344.90 кб, pdf
- Разрешение на ввод RU50-11-23078-2022, корпус 9 29.12.2022102.71 кб, pdf
- Проектная декларация № 50-002252, корпус 9 27.12.2022926.81 кб, pdf
- Схема планировочной организации земельного участка, корпус 9 08.11.20221.38 мб, pdf
- Экспертиза проектной документации, корпус 9 04.11.2022641.79 кб, pdf
- Проект договора участия в долевом строительстве, корпус 9 12.08.2022255.39 кб, pdf
- Градостроительный план земельного участка, корпус 9 05.07.2021859.18 кб, pdf
- Извещение о начале строительства, корпус 9 25.03.2021537.17 кб, pdf
- Сведения об уплате застройщиком обязательных отчислений, корпус 9 02.12.20193.96 мб, pdf
- Заключение о степени готовности RU50-11-10899-2018, корпус 9 08.07.2019949.34 кб, pdf
- Информация о выданных заключениях о соответствии застройщика и проектной декларации требованиям 214-ФЗ 50-002252 00149-19ИСХ/ЗОСТ, корпус 9 30.04.2019743.37 кб, pdf
- Разрешение на строительство RU50-11-10899-2018, корпус 9 15.06.20181.09 мб, pdf
- Разрешение на ввод RU50-11-23109-2022, корпус 16,4 30.12.2022106.66 кб, pdf
- Проект договора участия в долевом строительстве, корпус 16,4 29.12.2022171.28 кб, pdf
- Проектная декларация № 50-002264, корпус 16,4 28.12.2022909.72 кб, pdf
- Экспертиза проектной документации, корпус 16,4 14.10.20221.32 мб, pdf
- Схема планировочной организации земельного участка, корпус 16,4 23.08.20221.25 мб, pdf
- Градостроительный план земельного участка, корпус 16,4 05.07.2021859.18 кб, pdf
- Извещение о начале строительства, корпус 16,4 17.02.2021568.63 кб, pdf
- Сведения об уплате застройщиком обязательных отчислений, корпус 16,4 02.12.20194.22 мб, pdf
- Заключение о степени готовности RU50-11-10962-2018 , корпус 16,4 08.07.2019972.83 кб, pdf
- Информация о выданных заключениях о соответствии застройщика и проектной декларации требованиям 214-ФЗ 50-002264 00148-19ИСХ/ЗОСТ, корпус 16,4 30.04.2019743.37 кб, pdf
- Разрешение на строительство RU50-11-10962-2018, корпус 16,4 15.06.2018826.93 кб, pdf
- Разрешение на ввод RU50-11-23109-2022, корпус 16,3 30.12.2022106.66 кб, pdf
- Проект договора участия в долевом строительстве, корпус 16,3 29.12.2022171.28 кб, pdf
- Проектная декларация № 50-002264, корпус 16,3 28.12.2022909.72 кб, pdf
- Экспертиза проектной документации, корпус 16,3 14.10.20221.32 мб, pdf
- Схема планировочной организации земельного участка, корпус 16,3 23.08.20221.25 мб, pdf
- Градостроительный план земельного участка, корпус 16,3 05.07.2021859.18 кб, pdf
- Извещение о начале строительства, корпус 16,3 17.02.2021568.63 кб, pdf
- Сведения об уплате застройщиком обязательных отчислений, корпус 16,3 02.12.20194.22 мб, pdf
- Заключение о степени готовности RU50-11-10962-2018 , корпус 16,3 08.07.2019972.83 кб, pdf
- Информация о выданных заключениях о соответствии застройщика и проектной декларации требованиям 214-ФЗ 50-002264 00148-19ИСХ/ЗОСТ, корпус 16,3 30.04.2019743.37 кб, pdf
- Разрешение на строительство RU50-11-10962-2018, корпус 16,3 15.06.2018826.93 кб, pdf
- Разрешение на ввод RU50-11-23109-2022, корпус 16,2 30.12.2022106.66 кб, pdf
- Проект договора участия в долевом строительстве, корпус 16,2 29.12.2022171.28 кб, pdf
- Проектная декларация № 50-002264, корпус 16,2 28.12.2022909.72 кб, pdf
- Экспертиза проектной документации, корпус 16,2 14.10.20221.32 мб, pdf
- Схема планировочной организации земельного участка, корпус 16,2 23.08.20221.25 мб, pdf
- Градостроительный план земельного участка, корпус 16,2 05.07.2021859.18 кб, pdf
- Извещение о начале строительства, корпус 16,2 17.02.2021568.63 кб, pdf
- Сведения об уплате застройщиком обязательных отчислений, корпус 16,2 02.12.20194.22 мб, pdf
- Заключение о степени готовности RU50-11-10962-2018 , корпус 16,2 08.07.2019972.83 кб, pdf
- Информация о выданных заключениях о соответствии застройщика и проектной декларации требованиям 214-ФЗ 50-002264 00148-19ИСХ/ЗОСТ, корпус 16,2 30.04.2019743.37 кб, pdf
- Разрешение на строительство RU50-11-10962-2018, корпус 16,2 15.06.2018826.93 кб, pdf
- Разрешение на ввод RU50-11-23109-2022, корпус 16,1 30.12.2022106.66 кб, pdf
- Проект договора участия в долевом строительстве, корпус 16,1 29.12.2022171.28 кб, pdf
- Проектная декларация № 50-002264, корпус 16,1 28.12.2022909.72 кб, pdf
- Экспертиза проектной документации, корпус 16,1 14.10.20221.32 мб, pdf
- Схема планировочной организации земельного участка, корпус 16,1 23.08.20221.25 мб, pdf
- Градостроительный план земельного участка, корпус 16,1 05.07.2021859.18 кб, pdf
- Извещение о начале строительства, корпус 16,1 17.02.2021568.63 кб, pdf
- Сведения об уплате застройщиком обязательных отчислений, корпус 16,1 02.12.20194.22 мб, pdf
- Заключение о степени готовности RU50-11-10962-2018 , корпус 16,1 08.07.2019972.83 кб, pdf
- Информация о выданных заключениях о соответствии застройщика и проектной декларации требованиям 214-ФЗ 50-002264 00148-19ИСХ/ЗОСТ, корпус 16,1 30.04.2019743.37 кб, pdf
- Разрешение на строительство RU50-11-10962-2018, корпус 16,1 15.06.2018826.93 кб, pdf
- Разрешение на ввод RU50-11-22437-2022, корпус 12,4 11.10.2022341.70 кб, pdf
- Проектная декларация № 50-002253, корпус 12,4 05.10.2022869.22 кб, pdf
- Схема планировочной организации земельного участка, корпус 12,4 19.08.20221.28 мб, pdf
- Экспертиза проектной документации, корпус 12,4 18.08.2022329.16 кб, pdf
- Проект договора участия в долевом строительстве, корпус 12,4 12.08.2022286.70 кб, pdf
- Градостроительный план земельного участка, корпус 12,4 05.07.2021688.18 кб, pdf
- Извещение о начале строительства, корпус 12,4 17.02.2021556.60 кб, pdf
- Сведения об уплате застройщиком обязательных отчислений, корпус 12,4 02.12.20194.42 мб, pdf
- Заключение о степени готовности RU50-11-10893-2018, корпус 12,4 08.07.2019979.24 кб, pdf
- Информация о выданных заключениях о соответствии застройщика и проектной декларации требованиям 214-ФЗ 50-002253 00145-19ИСХ/ЗОСТ, корпус 12,4 30.04.2019743.34 кб, pdf
- Разрешение на строительство RU50-11-10893-2018, корпус 12,4 15.06.2018374.21 кб, pdf
- Разрешение на ввод RU50-11-22437-2022, корпус 12,3 11.10.2022341.70 кб, pdf
- Проектная декларация № 50-002253, корпус 12,3 05.10.2022869.22 кб, pdf
- Схема планировочной организации земельного участка, корпус 12,3 19.08.20221.28 мб, pdf
- Экспертиза проектной документации, корпус 12,3 18.08.2022329.16 кб, pdf
- Проект договора участия в долевом строительстве, корпус 12,3 12.08.2022286.70 кб, pdf
- Градостроительный план земельного участка, корпус 12,3 05.07.2021688.18 кб, pdf
- Извещение о начале строительства, корпус 12,3 17.02.2021556.60 кб, pdf
- Сведения об уплате застройщиком обязательных отчислений, корпус 12,3 02.12.20194.42 мб, pdf
- Заключение о степени готовности RU50-11-10893-2018, корпус 12,3 08.07.2019979.24 кб, pdf
- Информация о выданных заключениях о соответствии застройщика и проектной декларации требованиям 214-ФЗ 50-002253 00145-19ИСХ/ЗОСТ, корпус 12,3 30.04.2019743.34 кб, pdf
- Разрешение на строительство RU50-11-10893-2018, корпус 12,3 15.06.2018374.21 кб, pdf
- Разрешение на ввод RU50-11-22437-2022, корпус 12,2 11.10.2022341.70 кб, pdf
- Проектная декларация № 50-002253, корпус 12,2 05.10.2022869.22 кб, pdf
- Схема планировочной организации земельного участка, корпус 12,2 19.08.20221.28 мб, pdf
- Экспертиза проектной документации, корпус 12,2 18.08.2022329.16 кб, pdf
- Проект договора участия в долевом строительстве, корпус 12,2 12.08.2022286.70 кб, pdf
- Градостроительный план земельного участка, корпус 12,2 05.07.2021688.18 кб, pdf
- Извещение о начале строительства, корпус 12,2 17.02.2021556.60 кб, pdf
- Сведения об уплате застройщиком обязательных отчислений, корпус 12,2 02.12.20194.42 мб, pdf
- Заключение о степени готовности RU50-11-10893-2018, корпус 12,2 08.07.2019979.24 кб, pdf
- Информация о выданных заключениях о соответствии застройщика и проектной декларации требованиям 214-ФЗ 50-002253 00145-19ИСХ/ЗОСТ, корпус 12,2 30.04.2019743.34 кб, pdf
- Разрешение на строительство RU50-11-10893-2018, корпус 12,2 15.06.2018374.21 кб, pdf
- Разрешение на ввод RU50-11-21672-2022, корпус 7 08.06.2022132.48 кб, pdf
- Проектная декларация № 50-002250, корпус 7 06.06.2022701.43 кб, pdf
- Схема планировочной организации земельного участка, корпус 7 22.09.20211.47 мб, pdf
- Экспертиза проектной документации, корпус 7 21.09.20218.87 мб, pdf
- Проект договора участия в долевом строительстве, корпус 7 03.09.2021316.95 кб, pdf
- Градостроительный план земельного участка, корпус 7 05.07.2021616.83 кб, pdf
- Извещение о начале строительства, корпус 7 17.09.2020586.92 кб, pdf
- Сведения об уплате застройщиком обязательных отчислений, корпус 7 02.12.20193.84 мб, pdf
- Заключение о степени готовности RU50-11-10963-2018, корпус 7 08.07.2019950.59 кб, pdf
- Информация о выданных заключениях о соответствии застройщика и проектной декларации требованиям 214-ФЗ 50-002250 00147-19ИСХ/ЗОСТ, корпус 7 30.04.2019743.35 кб, pdf
- Разрешение на строительство RU50-11-10963-2018, корпус 7 15.06.2018152.24 кб, pdf


























