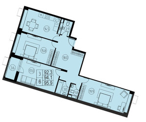
3-Комнатная квартира, 94.1 м², ID 487098
Обновлено неделю назад
14 021 000 ₽
149 001 ₽ / м2
- Срок сдачи
- I квартал 2021
- Застройщик
- нет данных
- Общая площадь
- 94.1 м2
- Жилая площадь
- 52.7 м2
- Площадь кухни
- 14.5 м2
- Высота потолков
- 2.7 м
- Этаж
- 11 из 17
- Корпус
- 2.1
- Отделка
- не указана
- Санузел
- Раздельный
- ID
- 487098
Описание
Трехкомнатная квартира, 94.1 м2 в ЖК Ривер-Парк от
Продается трехкомнатная квартира в новостройке ЖК Ривер-Парк за 14 021 000 р, находящаяся по адресу Королёв, мкр Текстильщик, ул Советская, д 9. Застройщик дома ПРОФИ-Инвест. Квартира сдается в I квартале 2021 года . Общая площадь квартиры - 94.1 м². Этаж 11. ID квартиры на СтройкиРУ 487098, назовите его когда будете звонить.













