2-Комнатная квартира, 71 м², ID 658586
Обновлено Позавчера
15 179 800 ₽
213 800 ₽ / м2
- Срок сдачи
- III квартал 2026
- Застройщик
- нет данных
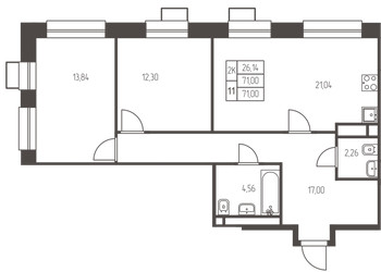
- Общая площадь
- 71 м2
- Этаж
- 23 из 25
- Корпус
- 1.1.
- Отделка
- Предчистовая
- ID
- 658586
Описание
Двухкомнатная квартира, 71 м2 в ЖК Новая Ивантеевка от
Продается двухкомнатная квартира в новостройке ЖК Новая Ивантеевка по цене 15 179 800 рублей, расположенная по адресу Ивантеевка, ул Заводская. Компания застройщик ПРОФИ-Инвест. Квартира сдается в III квартале 2026 года с предчистовой отделкой, в 25 минутах на машине от метро Медведково. Общая площадь квартиры - 71 м². Этаж 23. ID квартиры на СтройкиРУ 658586, сообщите его когда будете звонить.
























