3-Комнатная квартира, 70.9 м², ID 645986
Обновлено Вчера, 20:22
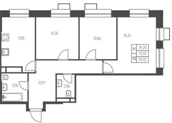
1 из 12
11 682 651 ₽
164 776 ₽ / м2
- Срок сдачи
- IV квартал 2026
- Застройщик
- нет данных
- Общая площадь
- 70.9 м2
- Этаж
- 24 из 25
- Корпус
- 1.1.
- Отделка
- Предчистовая
- ID
- 645986
Описание
Трехкомнатная квартира, 70.9 м2 в ЖК Новая Ивантеевка от
Продается 3-комн. квартира в новостройке ЖК Новая Ивантеевка за 11 682 651 ₽, находящаяся по адресу Ивантеевка, ул Заводская. Строится компанией ПРОФИ-Инвест. Квартира сдается в 4 квартале 2026 года с предчистовой отделкой, в 25 минутах на машине от станции метрополитена Медведково. Общая площадь квартиры - 70.9 кв. м. Этаж 24. ID квартиры на СтройкиРУ 645986, назовите его когда будете звонить.
Подробнее о ЖК Новая Ивантеевка
“Новая Ивантеевка” - комплекс комфорт-класса от группы компаний “Профи-Инвест”, возводится в 25 км от МКАД, в окружении парков и заповедников.
В комплексе будет 13 жилых домов этажностью от 12 до 25 этажей. Здания будут разделены прогулочным бульваром.
Инфраструктура и благоустройство
В пешей доступности есть железнодорожная станция “Зеленый Бор”, откуда с постоянной периодичностью ходят электропоезда до Ярославского вокзала. Удобный съезд на Ярославское шоссе, по которому можно быстро добраться до аэропорта “Шереметьево”
Входные группы расположатся на уровне земли с учетом безопасности детей и маломобильных групп населения
Консьерж для более комфортного проживания жителей дома
Колясочные комнаты
9 наземных и подземных паркингов
Благоустроенный сквер для прогулок и протяженная аллея на территории “Новой Ивантеевки” со скамейками, перголами и беседками
Игровые площадки для детей и тренажерные зоны с турниками
На территории ЖК три детских сада на 950 мест, две школы на 2200 учеников и физкультурный комплекс с бассейном
В корпусах будут продуктовые лавки, кофейни и салоны красоты
Поблизости есть поликлиника, торговый центр, краеведческий музей, конный клуб и санаторий.
Страница ЖК >>















