2-Комнатная квартира, 65.7 м², ID 635806
Обновлено Неделю назад
11 015 033 ₽
167 657 ₽ / м2
- Срок сдачи
- III квартал 2026
- Застройщик
- нет данных
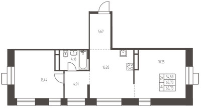
- Общая площадь
- 65.7 м2
- Этаж
- 8 из 25
- Корпус
- 1.1.
- Отделка
- Предчистовая
- ID
- 635806
Описание
Двухкомнатная квартира, 65.7 м2 в ЖК Новая Ивантеевка от
Продается 2-комн. квартира в новостройке ЖК Новая Ивантеевка по цене 11 015 033 руб, расположенная по адресу Ивантеевка, ул Заводская. Застройщик ПРОФИ-Инвест. Квартира сдается в 3 квартале 2026 года с предчистовой отделкой, в 25 минутах на машине от метро Медведково. Общая площадь квартиры - 65.7 кв. м. Этаж 8. ID квартиры на СтройкиРУ 635806, сообщите его когда будете звонить.
























