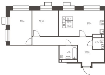
2-Комнатная квартира, 71 м², ID 635746
Обновлено 2 месяца назад

10 790 580 ₽
151 980 ₽ / м2
- Срок сдачи
- III квартал 2026
- Застройщик
- нет данных
- Общая площадь
- 71 м2
- Этаж
- 24 из 25
- Корпус
- 1.1.
- Отделка
- Предчистовая
- ID
- 635746
Описание
Двухкомнатная квартира, 71 м2 в ЖК Новая Ивантеевка от
Продается 2-комн. квартира в новостройке ЖК Новая Ивантеевка стоимостью 10 790 580 ₽, по адресу Ивантеевка, ул Заводская. Строится компанией ПРОФИ-Инвест. Квартира сдается в 4 квартале 2026 года с предчистовой отделкой, в 25 минутах на машине от станции метро Медведково. Общая площадь квартиры - 71 кв. м. Этаж 24. ID квартиры на СтройкиРУ 635746, скажите его когда будете звонить.
























