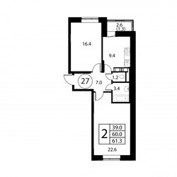
2-Комнатная квартира, 61.3 м², ID 655938
Обновлено Позавчера
1 из 8
9 315 761 ₽
151 970 ₽ / м2
- Срок сдачи
- II квартал 2025
- Застройщик
- нет данных
- Общая площадь
- 61.3 м2
- Этаж
- 8 из 12
- Корпус
- 1
- Отделка
- Черновая
- ID
- 655938
Описание
Двухкомнатная квартира, 61.3 м2 в ЖК Космос от
Продается двухкомнатная квартира в новостройке ЖК Космос стоимостью 9 315 761 рублей, по адресу Домодедово, мкр Авиационный, ул Жуковского, д 1. Компания застройщик Скала. Квартира сдается в II квартале 2025 года с черновой отделкой, в 39 минутах на машине от станции метро Домодедовская. Общая площадь квартиры - 61.3 м². Этаж 8. ID квартиры на СтройкиРУ 655938, скажите его когда будете звонить.
Подробнее о ЖК Космос
“Космос” - жилой комплекс комфорт-класса от специального застройщика “Скала” в Домодедово.
Комплекс представляет собой 7 монолитно-кирпичных 12-этажных корпусов. Квартирография проекта насчитывает более 20 вариантов планировочных решений. Приобрести жилье можно площадью от 27 м2 до 103,05 м2. Разнообразие планировок предусматривает наличие лотов с двусторонней ориентацией окон, раздельным санузлом или дополнительным гостевым санузлом, большой прихожей и просторной кухней-гостиной.
В некоторых корпусах есть квартиры с предчистовой или чистовой отделкой от застройщика.
Инфраструктура и благоустройство
До станции метро “Домодедовская” - 39 минут на транспорте. Дорога до МКАД на авто займет не более 20-25 минут без учета пробок
Для сохранения внешнего вида фасадов в первозданном виде все квартиры оборудованы декоративными корзинами под наружные блоки кондиционеров
Расположение корпусов образует светлые просторные дворы, которые будут благоустроены в соответствии с потребностями всех жителей новостройки
В микрорайоне представлены квартиры с отдельными входами и лоты с просторными террасами
Наземные автостоянки на 544 машиноместа
Для магазинов и предприятий бытового обслуживания выделены коммерческие помещения на первых этажах домов
В пешей доступности от комплекса расположены школы, детские сады, остановки общественного транспорта, парк “Взлет” и ж/д станция “Авиационная”.
Страница ЖК >>











