4+ Комнатная квартира, 286.7 м², ID 595852
Обновлено Сегодня, 03:30
57 760 000 ₽
201 465 ₽ / м2
Описание
4+ Комнатная квартира, 286.7 м2 в ЖК Мечта от
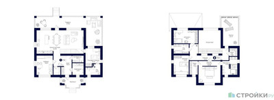
Продается 4+ комнатная квартира в новостройке ЖК Мечта за 57 760 000 р, находящаяся по адресу Дмитров, село Озерецкое, ул Тихая. Застройщик дома 10 Квартал. Квартира сдается в IV квартале 2025 года с чистовой отделкой, в 35 минутах на машине от станции метрополитена Физтех. Общая площадь квартиры - 286.7 м². Этаж 1 из 2. ID квартиры на СтройкиРУ 595852, назовите его когда будете звонить.
Подробнее о ЖК Мечта
Ход строительства
Документация
- Сведения об уплате застройщиком обязательных отчислений, корпус 26 дом 10 квартал 27.04.2022328.19 кб, pdf
- Проектная декларация № 50-001681, корпус 26 дом 10 квартал 14.01.2022327.07 кб, pdf
- Разрешение на ввод RU50-04-20528-2022, корпус 26 дом 10 квартал 10.01.2022132.12 кб, pdf
- Схема планировочной организации земельного участка, корпус 26 дом 10 квартал 24.12.2020778.32 кб, pdf
- Проект договора участия в долевом строительстве, корпус 26 дом 10 квартал 12.05.2020531.19 кб, pdf
- Градостроительный план земельного участка, корпус 26 дом 10 квартал 17.01.202020.92 мб, pdf
- Заключение о степени готовности RU50520000-287, корпус 26 дом 10 квартал 02.07.20191.13 мб, pdf
- Извещение о начале строительства, корпус 26 дом 10 квартал 18.10.20181.86 мб, pdf
- Экспертиза проектной документации, корпус 26 дом 10 квартал 22.10.201432.83 мб, pdf
- Разрешение на строительство RU50520000-287, корпус 26 дом 10 квартал 30.12.20112.65 мб, pdf
- Сведения об уплате застройщиком обязательных отчислений, корпус 30 дом 10 квартал 27.04.2022328.19 кб, pdf
- Проектная декларация № 50-001681, корпус 30 дом 10 квартал 14.01.2022327.07 кб, pdf
- Разрешение на ввод RU50-04-20528-2022, корпус 30 дом 10 квартал 10.01.2022132.12 кб, pdf
- Схема планировочной организации земельного участка, корпус 30 дом 10 квартал 24.12.2020778.32 кб, pdf
- Проект договора участия в долевом строительстве, корпус 30 дом 10 квартал 12.05.2020531.19 кб, pdf
- Градостроительный план земельного участка, корпус 30 дом 10 квартал 17.01.202020.92 мб, pdf
- Заключение о степени готовности RU50520000-287, корпус 30 дом 10 квартал 02.07.20191.13 мб, pdf
- Извещение о начале строительства, корпус 30 дом 10 квартал 18.10.20181.86 мб, pdf
- Экспертиза проектной документации, корпус 30 дом 10 квартал 22.10.201432.83 мб, pdf
- Разрешение на строительство RU50520000-287, корпус 30 дом 10 квартал 30.12.20112.65 мб, pdf
- Сведения об уплате застройщиком обязательных отчислений, корпус Дом 30 (Квартал 10) 27.04.2022328.19 кб, pdf
- Проектная декларация № 50-001681, корпус Дом 30 (Квартал 10) 14.01.2022327.07 кб, pdf
- Разрешение на ввод RU50-04-20528-2022, корпус Дом 30 (Квартал 10) 10.01.2022132.12 кб, pdf
- Схема планировочной организации земельного участка, корпус Дом 30 (Квартал 10) 24.12.2020778.32 кб, pdf
- Проект договора участия в долевом строительстве, корпус Дом 30 (Квартал 10) 12.05.2020531.19 кб, pdf
- Градостроительный план земельного участка, корпус Дом 30 (Квартал 10) 17.01.202020.92 мб, pdf
- Заключение о степени готовности RU50520000-287, корпус Дом 30 (Квартал 10) 02.07.20191.13 мб, pdf
- Извещение о начале строительства, корпус Дом 30 (Квартал 10) 18.10.20181.86 мб, pdf
- Экспертиза проектной документации, корпус Дом 30 (Квартал 10) 22.10.201432.83 мб, pdf
- Разрешение на строительство RU50520000-287, корпус Дом 30 (Квартал 10) 30.12.20112.65 мб, pdf





















