4+ Комнатная квартира, 245.3 м², ID 595847
Обновлено Вчера, 12:30
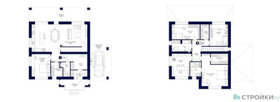
1 из 10
46 894 000 ₽
191 170 ₽ / м2
- ЖК
- ЖК Мечта
- Срок сдачи
- IV квартал 2025
- Застройщик
- нет данных
- Общая площадь
- 245.3 м2
- Жилая площадь
- 77.44 м2
- Площадь кухни
- 47.9 м2
- Этаж
- 1 из 5
- Корпус
- Лесная мелодия
- Отделка
- Предчистовая
- Санузел
- Несколько
- ID
- 595847
Описание
4+ Комнатная квартира, 245.3 м2 в ЖК Мечта от
Продается 4+ комнатная квартира в новостройке ЖК Мечта по цене 46 894 000 рублей, расположенная по адресу Дмитров, село Озерецкое, ул Тихая. Компания застройщик 10 Квартал. Квартира сдается в IV квартале 2025 года с предчистовой отделкой, в 35 минутах на машине от метро Физтех. Общая площадь квартиры - 245.3 м². Этаж 1 из 2. ID квартиры на СтройкиРУ 595847, сообщите его когда будете звонить.
Подробнее о ЖК Мечта
Объект малоэтажной застройки неподалеку от поселка Озерецкое реализует строительная компания «10 квартал». Участок застройки расположен рядом с Дмитровским шоссе, в 23 километрах от столицы. Застройщик предлагает потенциальным покупателям несколько вариантов недвижимости: таунхаусы, коттеджи и квартиры в зданиях, построенных из керамзитобетона. Все строения имеют трехслойные наружные стены и утеплены пенополистиролом. В настоящее время в эксплуатацию введено 17 корпусов.
На территории комплекса размещаются торговые точки, баня, поликлиника, почтовое отделение и сервисные службы.
Для удобства жителей организовано собственное автопредприятие «Мечта-Авто», которое занимается перевозкой пассажиров от ЖК “Мечта” до столицы и обратно. При наличии пробок можно доехать до ближайшей ж/д станции в Лобни.
Поселок Озерецкое полностью обеспечен необходимыми социальными объектами. Здесь функционируют:
Детские сады и школы;
Бассейн;
Музыкальная и художественная школы;
Спортивные и детские площадки;
Библиотека.
Комплекс окружен природным заповедником и тремя реликтовыми озерами, которые находятся в радиусе километра от границы участка. Рядом также протекают речки Уча, Альба и Волгуша.
Страница ЖК >>
Ход строительства
Документация
- Сведения об уплате застройщиком обязательных отчислений, корпус 26 дом 10 квартал 27.04.2022328.19 кб, pdf
- Проектная декларация № 50-001681, корпус 26 дом 10 квартал 14.01.2022327.07 кб, pdf
- Разрешение на ввод RU50-04-20528-2022, корпус 26 дом 10 квартал 10.01.2022132.12 кб, pdf
- Схема планировочной организации земельного участка, корпус 26 дом 10 квартал 24.12.2020778.32 кб, pdf
- Проект договора участия в долевом строительстве, корпус 26 дом 10 квартал 12.05.2020531.19 кб, pdf
- Градостроительный план земельного участка, корпус 26 дом 10 квартал 17.01.202020.92 мб, pdf
- Заключение о степени готовности RU50520000-287, корпус 26 дом 10 квартал 02.07.20191.13 мб, pdf
- Извещение о начале строительства, корпус 26 дом 10 квартал 18.10.20181.86 мб, pdf
- Экспертиза проектной документации, корпус 26 дом 10 квартал 22.10.201432.83 мб, pdf
- Разрешение на строительство RU50520000-287, корпус 26 дом 10 квартал 30.12.20112.65 мб, pdf
- Сведения об уплате застройщиком обязательных отчислений, корпус 30 дом 10 квартал 27.04.2022328.19 кб, pdf
- Проектная декларация № 50-001681, корпус 30 дом 10 квартал 14.01.2022327.07 кб, pdf
- Разрешение на ввод RU50-04-20528-2022, корпус 30 дом 10 квартал 10.01.2022132.12 кб, pdf
- Схема планировочной организации земельного участка, корпус 30 дом 10 квартал 24.12.2020778.32 кб, pdf
- Проект договора участия в долевом строительстве, корпус 30 дом 10 квартал 12.05.2020531.19 кб, pdf
- Градостроительный план земельного участка, корпус 30 дом 10 квартал 17.01.202020.92 мб, pdf
- Заключение о степени готовности RU50520000-287, корпус 30 дом 10 квартал 02.07.20191.13 мб, pdf
- Извещение о начале строительства, корпус 30 дом 10 квартал 18.10.20181.86 мб, pdf
- Экспертиза проектной документации, корпус 30 дом 10 квартал 22.10.201432.83 мб, pdf
- Разрешение на строительство RU50520000-287, корпус 30 дом 10 квартал 30.12.20112.65 мб, pdf
- Сведения об уплате застройщиком обязательных отчислений, корпус Дом 30 (Квартал 10) 27.04.2022328.19 кб, pdf
- Проектная декларация № 50-001681, корпус Дом 30 (Квартал 10) 14.01.2022327.07 кб, pdf
- Разрешение на ввод RU50-04-20528-2022, корпус Дом 30 (Квартал 10) 10.01.2022132.12 кб, pdf
- Схема планировочной организации земельного участка, корпус Дом 30 (Квартал 10) 24.12.2020778.32 кб, pdf
- Проект договора участия в долевом строительстве, корпус Дом 30 (Квартал 10) 12.05.2020531.19 кб, pdf
- Градостроительный план земельного участка, корпус Дом 30 (Квартал 10) 17.01.202020.92 мб, pdf
- Заключение о степени готовности RU50520000-287, корпус Дом 30 (Квартал 10) 02.07.20191.13 мб, pdf
- Извещение о начале строительства, корпус Дом 30 (Квартал 10) 18.10.20181.86 мб, pdf
- Экспертиза проектной документации, корпус Дом 30 (Квартал 10) 22.10.201432.83 мб, pdf
- Разрешение на строительство RU50520000-287, корпус Дом 30 (Квартал 10) 30.12.20112.65 мб, pdf













