1-Комнатная квартира, 35 м², ID 270427
Обновлено месяц назад

Квартира снята с публикации
Доступ только по прямой ссылке
1 из 8
9 648 000 ₽
275 657 ₽ / м2
- Срок сдачи
- II квартал 2026
- Застройщик
- нет данных
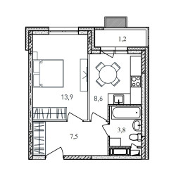
- Общая площадь
- 35 м2
- Жилая площадь
- 13.9 м2
- Высота потолков
- 2.74 м
- Этаж
- 9 из 17
- Корпус
- 4
- Отделка
- Черновая
- Санузел
- Раздельный
- ID
- 270427
Описание
Однокомнатная квартира, 35 м2 в ЖК Квартал Светлый от
Продается однокомнатная квартира в новостройке ЖК Квартал Светлый стоимостью 9 648 000 р, по адресу Балашиха, ул Твардовского, д 36. Застройщик дома Сетьстрой. Квартира сдается в II квартале 2026 года с черновой отделкой, в 30 минутах на машине от станции метро Новокосино. Общая площадь квартиры - 35 м². Этаж 9. ID квартиры на СтройкиРУ 270427, скажите его когда будете звонить.
Подробнее о ЖК Квартал Светлый
“Квартал Светлый” - жилой комплекс комфорт-класса в Балашихе от группы компаний “Сетьстрой”. На территории комплекса запланировано 4 корпуса, высота зданий будет варьироваться от 14 до 17 этажей.
Инфраструктура и благоустройство
Хорошая транспортная доступность. Удаленность ЖК от МКАД – 10 км. Всего в 200 м от комплекса есть остановка общественного транспорта, до станции метро “Новокосино” - 30 минут на транспорте
Так как новостройка располагается на территории большого гипермаркета “Лента”, жильцы комплекса обязательно оценят удобство инфраструктуры, которая включает в себя: дошкольные учебные заведения, гимназии, школы, различные магазины со всеми необходимыми товарами в шаговой доступности, медицинские учреждения и спортзалы
В ЖК “Квартал Светлый” есть отличительная черта - наличие стилобата, на котором и будут располагаться здания жилого комплекса. На территории стилобата будут открыты магазины, библиотека, банк, спортивный комплекс. В цокольной части одного из корпусов будет располагаться детский садик на 112 мест
Для хранения личных автомобилей будет организован подземный паркинг, а все гости смогут оставлять свой транспорт на открытом паркинге
Для отдыха и релаксации возле жилого комплекса находится Озерный парк.
Страница ЖК >>
















