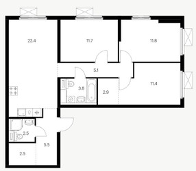
3-Комнатная квартира, 79.6 м², ID 297851
Обновлено 6 дня назад
21 277 000 ₽
267 299 ₽ / м2
- Срок сдачи
- I квартал 2026
- Застройщик
- нет данных
- Общая площадь
- 79.6 м2
- Жилая площадь
- 34.9 м2
- Площадь кухни
- 22.4 м2
- Высота потолков
- 2.62 м
- Этаж
- 23 из 25
- Корпус
- 16.4
- Отделка
- не указана
- Санузел
- Раздельный
- ID
- 297851
Описание
Трехкомнатная квартира, 79.6 м2 в ЖК Ярославский от
Продается 3-комн. квартира в новостройке ЖК Ярославский стоимостью 21 277 000 руб, по адресу Мытищи, Олимпийский пр-кт, д 40 к 1. Застройщик «ПИК». Квартира сдается в 1 квартале 2026 года в 9 минутах на машине от станции метро Медведково. Общая площадь квартиры - 79.6 кв. м. Этаж 23. ID квартиры на СтройкиРУ 297851, скажите его когда будете звонить.
Подробнее о ЖК Ярославский
Ход строительства
Документация
- Разрешение на ввод RU50-12-17138-2020, корпус Корпус 49.2 04.12.202071.96 кб, pdf
- Проектная декларация № 50-001368, корпус Корпус 49.2 02.12.2020861.88 кб, pdf
- Градостроительный план земельного участка, корпус Корпус 49.2 23.07.20209.82 мб, pdf
- Схема планировочной организации земельного участка, корпус Корпус 49.2 23.07.20204.12 мб, pdf
- Экспертиза проектной документации, корпус Корпус 49.2 17.12.2019489.95 кб, pdf
- Проект договора участия в долевом строительстве, корпус Корпус 49.2 05.12.2019869.04 кб, pdf
- Заключение о степени готовности RU50-24-10021-2017, корпус Корпус 49.2 25.06.20191.47 мб, pdf
- Извещение о начале строительства, корпус Корпус 49.2 30.10.20181.77 мб, pdf
- Сведения об уплате застройщиком обязательных отчислений, корпус Корпус 49.2 30.10.20186.85 мб, pdf
- Информация о выданных заключениях о соответствии застройщика и проектной декларации требованиям 214-ФЗ 50-001368 00192-18ИСХ/ЗОСТ, корпус Корпус 49.2 19.06.2018737.68 кб, pdf
- Разрешение на строительство RU50-24-10021-2017, корпус Корпус 49.2 29.12.2017127.58 кб, pdf
- Разрешение на ввод RU50-12-17138-2020, корпус Корпус 49.1 04.12.202071.96 кб, pdf
- Проектная декларация № 50-001368, корпус Корпус 49.1 02.12.2020861.88 кб, pdf
- Градостроительный план земельного участка, корпус Корпус 49.1 23.07.20209.82 мб, pdf
- Схема планировочной организации земельного участка, корпус Корпус 49.1 23.07.20204.12 мб, pdf
- Экспертиза проектной документации, корпус Корпус 49.1 17.12.2019489.95 кб, pdf
- Проект договора участия в долевом строительстве, корпус Корпус 49.1 05.12.2019869.04 кб, pdf
- Заключение о степени готовности RU50-24-10021-2017, корпус Корпус 49.1 25.06.20191.47 мб, pdf
- Извещение о начале строительства, корпус Корпус 49.1 30.10.20181.77 мб, pdf
- Сведения об уплате застройщиком обязательных отчислений, корпус Корпус 49.1 30.10.20186.85 мб, pdf
- Информация о выданных заключениях о соответствии застройщика и проектной декларации требованиям 214-ФЗ 50-001368 00192-18ИСХ/ЗОСТ, корпус Корпус 49.1 19.06.2018737.68 кб, pdf
- Разрешение на строительство RU50-24-10021-2017, корпус Корпус 49.1 29.12.2017127.58 кб, pdf




















