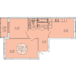
3-Комнатная квартира, 61.71 м², ID 375661
Обновлено позавчера
10 682 000 ₽
173 100 ₽ / м2
- Срок сдачи
- II квартал 2024
- Застройщик
- нет данных
- Общая площадь
- 61.71 м2
- Жилая площадь
- 30.66 м2
- Площадь кухни
- 15.16 м2
- Высота потолков
- 2.82 м
- Этаж
- 4 из 4
- Корпус
- 11
- Отделка
- Чистовая
- Санузел
- Раздельный
- ID
- 375661
Описание
Трехкомнатная квартира, 61.71 м2 в ЖК Шолохово от
Продается трехкомнатная квартира в новостройке ЖК Шолохово по цене 10 682 000 р, расположенная по адресу Мытищи, Дмитровское шоссе. Застройщик дома РосЕвроСити. Квартира сдается в II квартале 2024 года с чистовой отделкой, в 32 минутах на машине от метро Физтех. Общая площадь квартиры - 61.71 м². Этаж 4. ID квартиры на СтройкиРУ 375661, сообщите его когда будете звонить.
Подробнее о ЖК Шолохово
Особенности
Ход строительства
Документация
- Проектная декларация № 50-003256, корпус 17 07.06.2023423.97 кб, pdf
- Проект договора участия в долевом строительстве, корпус 17 21.10.2022972.88 кб, pdf
- Извещение о начале строительства, корпус 17 20.06.202241.22 кб, pdf
- Схема планировочной организации земельного участка, корпус 17 28.09.20203.94 мб, pdf
- Градостроительный план земельного участка, корпус 17 28.09.20203.06 мб, pdf
- Разрешение на строительство RU50-12-15824-2020, корпус 17 12.05.2020178.58 кб, pdf
- Экспертиза проектной документации, корпус 17 04.04.20148.00 мб, pdf
- Проектная декларация № 50-003256, корпус 16 07.06.2023423.97 кб, pdf
- Проект договора участия в долевом строительстве, корпус 16 21.10.2022972.80 кб, pdf
- Извещение о начале строительства, корпус 16 20.06.202241.22 кб, pdf
- Схема планировочной организации земельного участка, корпус 16 28.09.20203.94 мб, pdf
- Градостроительный план земельного участка, корпус 16 28.09.20203.06 мб, pdf
- Разрешение на строительство RU50-12-15824-2020, корпус 16 12.05.2020178.58 кб, pdf
- Экспертиза проектной документации, корпус 16 04.04.20148.00 мб, pdf
- Проектная декларация № 50-003256, корпус 15 07.06.2023423.97 кб, pdf
- Проект договора участия в долевом строительстве, корпус 15 21.10.2022972.84 кб, pdf
- Извещение о начале строительства, корпус 15 20.06.202241.22 кб, pdf
- Градостроительный план земельного участка, корпус 15 28.09.20203.06 мб, pdf
- Схема планировочной организации земельного участка, корпус 15 28.09.20203.94 мб, pdf
- Разрешение на строительство RU50-12-15824-2020, корпус 15 12.05.2020178.58 кб, pdf
- Экспертиза проектной документации, корпус 15 04.04.20148.00 мб, pdf
- Проектная декларация № 50-003255, корпус 14 07.06.2023185.64 кб, pdf
- Проект договора участия в долевом строительстве, корпус 14 21.10.2022972.87 кб, pdf
- Извещение о начале строительства, корпус 14 18.10.2021864.06 кб, pdf
- Схема планировочной организации земельного участка, корпус 14 25.09.20203.94 мб, pdf
- Градостроительный план земельного участка, корпус 14 24.09.20203.01 мб, pdf
- Разрешение на строительство RU50-12-15329-2020, корпус 14 06.02.2020152.07 кб, pdf
- Экспертиза проектной документации, корпус 14 04.04.20148.00 мб, pdf
- Проектная декларация № 50-003256, корпус 13 07.06.2023423.97 кб, pdf
- Проект договора участия в долевом строительстве, корпус 13 21.10.2022972.88 кб, pdf
- Извещение о начале строительства, корпус 13 20.06.202241.22 кб, pdf
- Схема планировочной организации земельного участка, корпус 13 28.09.20203.94 мб, pdf
- Градостроительный план земельного участка, корпус 13 28.09.20203.06 мб, pdf
- Разрешение на строительство RU50-12-15824-2020, корпус 13 12.05.2020178.58 кб, pdf
- Экспертиза проектной документации, корпус 13 04.04.20148.00 мб, pdf
- Проектная декларация № 50-003256, корпус 12 07.06.2023423.97 кб, pdf
- Проект договора участия в долевом строительстве, корпус 12 21.10.2022972.88 кб, pdf
- Извещение о начале строительства, корпус 12 20.06.202241.22 кб, pdf
- Схема планировочной организации земельного участка, корпус 12 28.09.20203.94 мб, pdf
- Градостроительный план земельного участка, корпус 12 28.09.20203.06 мб, pdf
- Разрешение на строительство RU50-12-15824-2020, корпус 12 12.05.2020178.58 кб, pdf
- Экспертиза проектной документации, корпус 12 04.04.20148.00 мб, pdf
- Проектная декларация № 50-003256, корпус 11 07.06.2023423.97 кб, pdf
- Проект договора участия в долевом строительстве, корпус 11 21.10.2022972.88 кб, pdf
- Извещение о начале строительства, корпус 11 20.06.202241.22 кб, pdf
- Градостроительный план земельного участка, корпус 11 28.09.20203.06 мб, pdf
- Схема планировочной организации земельного участка, корпус 11 28.09.20203.94 мб, pdf
- Разрешение на строительство RU50-12-15824-2020, корпус 11 12.05.2020178.58 кб, pdf
- Экспертиза проектной документации, корпус 11 04.04.20148.00 мб, pdf
- Проектная декларация № 50-003256, корпус 10 07.06.2023423.97 кб, pdf
- Проект договора участия в долевом строительстве, корпус 10 21.10.2022972.88 кб, pdf
- Извещение о начале строительства, корпус 10 20.06.202241.22 кб, pdf
- Схема планировочной организации земельного участка, корпус 10 28.09.20203.94 мб, pdf
- Градостроительный план земельного участка, корпус 10 28.09.20203.06 мб, pdf
- Разрешение на строительство RU50-12-15824-2020, корпус 10 12.05.2020178.58 кб, pdf
- Экспертиза проектной документации, корпус 10 04.04.20148.00 мб, pdf
- Проектная декларация № 50-003256, корпус 9 07.06.2023423.97 кб, pdf
- Проект договора участия в долевом строительстве, корпус 9 21.10.2022972.88 кб, pdf
- Извещение о начале строительства, корпус 9 20.06.202241.22 кб, pdf
- Схема планировочной организации земельного участка, корпус 9 28.09.20203.94 мб, pdf
- Градостроительный план земельного участка, корпус 9 28.09.20203.06 мб, pdf
- Разрешение на строительство RU50-12-15824-2020, корпус 9 12.05.2020178.58 кб, pdf
- Экспертиза проектной документации, корпус 9 04.04.20148.00 мб, pdf
- Проектная декларация № 50-003256, корпус 8 07.06.2023423.97 кб, pdf
- Проект договора участия в долевом строительстве, корпус 8 21.10.2022972.88 кб, pdf
- Извещение о начале строительства, корпус 8 20.06.202241.22 кб, pdf
- Градостроительный план земельного участка, корпус 8 28.09.20203.06 мб, pdf
- Схема планировочной организации земельного участка, корпус 8 28.09.20203.94 мб, pdf
- Разрешение на строительство RU50-12-15824-2020, корпус 8 12.05.2020178.58 кб, pdf
- Экспертиза проектной документации, корпус 8 04.04.20148.00 мб, pdf
- Проектная декларация № 50-003256, корпус 7 07.06.2023423.97 кб, pdf
- Проект договора участия в долевом строительстве, корпус 7 21.10.2022972.88 кб, pdf
- Извещение о начале строительства, корпус 7 20.06.202241.22 кб, pdf
- Схема планировочной организации земельного участка, корпус 7 28.09.20203.94 мб, pdf
- Градостроительный план земельного участка, корпус 7 28.09.20203.06 мб, pdf
- Разрешение на строительство RU50-12-15824-2020, корпус 7 12.05.2020178.58 кб, pdf
- Экспертиза проектной документации, корпус 7 04.04.20148.00 мб, pdf
- Проектная декларация № 50-003256, корпус 6 07.06.2023423.97 кб, pdf
- Проект договора участия в долевом строительстве, корпус 6 21.10.2022972.88 кб, pdf
- Извещение о начале строительства, корпус 6 20.06.202241.22 кб, pdf
- Схема планировочной организации земельного участка, корпус 6 28.09.20203.94 мб, pdf
- Градостроительный план земельного участка, корпус 6 28.09.20203.06 мб, pdf
- Разрешение на строительство RU50-12-15824-2020, корпус 6 12.05.2020178.58 кб, pdf
- Экспертиза проектной документации, корпус 6 04.04.20148.00 мб, pdf
- Проектная декларация № 50-003256, корпус 5 07.06.2023423.97 кб, pdf
- Проект договора участия в долевом строительстве, корпус 5 21.10.2022972.88 кб, pdf
- Извещение о начале строительства, корпус 5 20.06.202241.22 кб, pdf
- Схема планировочной организации земельного участка, корпус 5 28.09.20203.94 мб, pdf
- Градостроительный план земельного участка, корпус 5 28.09.20203.06 мб, pdf
- Разрешение на строительство RU50-12-15824-2020, корпус 5 12.05.2020178.58 кб, pdf
- Экспертиза проектной документации, корпус 5 04.04.20148.00 мб, pdf
- Проектная декларация № 50-003256, корпус 4 07.06.2023423.97 кб, pdf
- Проект договора участия в долевом строительстве, корпус 4 21.10.2022972.88 кб, pdf
- Извещение о начале строительства, корпус 4 20.06.202241.22 кб, pdf
- Схема планировочной организации земельного участка, корпус 4 28.09.20203.94 мб, pdf
- Градостроительный план земельного участка, корпус 4 28.09.20203.06 мб, pdf
- Разрешение на строительство RU50-12-15824-2020, корпус 4 12.05.2020178.58 кб, pdf
- Экспертиза проектной документации, корпус 4 04.04.20148.00 мб, pdf
- Проектная декларация № 50-003256, корпус 3 07.06.2023423.97 кб, pdf
- Проект договора участия в долевом строительстве, корпус 3 21.10.2022972.88 кб, pdf
- Извещение о начале строительства, корпус 3 20.06.202241.22 кб, pdf
- Схема планировочной организации земельного участка, корпус 3 28.09.20203.94 мб, pdf
- Градостроительный план земельного участка, корпус 3 28.09.20203.06 мб, pdf
- Разрешение на строительство RU50-12-15824-2020, корпус 3 12.05.2020178.58 кб, pdf
- Экспертиза проектной документации, корпус 3 04.04.20148.00 мб, pdf
- Проектная декларация № 50-003256, корпус 2 07.06.2023423.97 кб, pdf
- Проект договора участия в долевом строительстве, корпус 2 21.10.2022972.88 кб, pdf
- Извещение о начале строительства, корпус 2 20.06.202241.22 кб, pdf
- Схема планировочной организации земельного участка, корпус 2 28.09.20203.94 мб, pdf
- Градостроительный план земельного участка, корпус 2 28.09.20203.06 мб, pdf
- Разрешение на строительство RU50-12-15824-2020, корпус 2 12.05.2020178.58 кб, pdf
- Экспертиза проектной документации, корпус 2 04.04.20148.00 мб, pdf
- Проектная декларация № 50-003256, корпус 1 07.06.2023423.97 кб, pdf
- Проект договора участия в долевом строительстве, корпус 1 21.10.2022972.88 кб, pdf
- Извещение о начале строительства, корпус 1 20.06.202241.22 кб, pdf
- Градостроительный план земельного участка, корпус 1 28.09.20203.06 мб, pdf
- Схема планировочной организации земельного участка, корпус 1 28.09.20203.94 мб, pdf
- Разрешение на строительство RU50-12-15824-2020, корпус 1 12.05.2020178.58 кб, pdf
- Экспертиза проектной документации, корпус 1 04.04.20148.00 мб, pdf






















