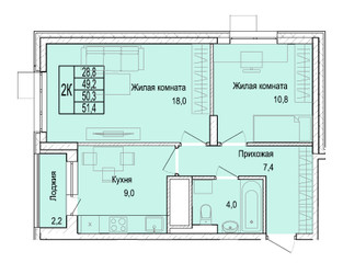
2-Комнатная квартира, 50.2 м², ID 533280
Обновлено 5 дня назад
9 500 000 ₽
189 243 ₽ / м2
- Срок сдачи
- IV квартал 2026
- Застройщик
- нет данных
- Общая площадь
- 50.2 м2
- Жилая площадь
- 28.8 м2
- Площадь кухни
- 9 м2
- Высота потолков
- 2.8 м
- Этаж
- 8 из 25
- Корпус
- 6
- Отделка
- Чистовая
- Санузел
- Раздельный
- ID
- 533280
Описание
Двухкомнатная квартира, 50.2 м2 в ЖК Отрадный от
Продается двухкомнатная квартира в новостройке ЖК Отрадный по цене 9 500 000 рублей, расположенная по адресу Мытищи, ул Академика Каргина, д 23А стр 1. Компания застройщик Инвест-Строй. Квартира сдается в IV квартале 2026 года с чистовой отделкой, . Общая площадь квартиры - 50.2 м². Этаж 8. ID квартиры на СтройкиРУ 533280, сообщите его когда будете звонить.
Подробнее о ЖК Отрадный
Ход строительства
Документация
- Проектная декларация № 34-000563, корпус 4 31.01.2023207.94 кб, pdf
- Разрешение на ввод 34-34-09-2023, корпус 4 30.01.20231.42 мб, pdf
- Проект договора участия в долевом строительстве, корпус 4 21.05.2021118.62 кб, pdf
- Извещение о начале строительства, корпус 4 26.04.2021922.71 кб, pdf
- Информация о выданных заключениях о соответствии застройщика и проектной декларации требованиям 214-ФЗ 34-000563 ЗОС/068/34-000563, корпус 4 15.04.20211.71 мб, pdf
- Градостроительный план земельного участка, корпус 4 08.04.202124.09 мб, pdf
- Схема планировочной организации земельного участка, корпус 4 08.04.202113.24 мб, pdf
- Разрешение на строительство 34-RU34301000-6154-2021, корпус 4 02.04.20211.22 мб, pdf
- Экспертиза проектной документации, корпус 4 18.09.20206.60 мб, pdf
- Разрешение на ввод RU50-12-15242-2020, корпус 1 28.01.202068.48 кб, pdf
- Проектная декларация № 50-001552, корпус 1 13.01.2020194.60 кб, pdf
- Заключение о степени готовности RU50-12-11090-2018, корпус 1 05.07.2019943.48 кб, pdf
- Схема планировочной организации земельного участка, корпус 1 13.06.20191.46 мб, pdf
- Градостроительный план земельного участка, корпус 1 13.06.20193.11 мб, pdf
- Сведения об уплате застройщиком обязательных отчислений, корпус 1 13.06.201913.46 мб, pdf
- Извещение о начале строительства, корпус 1 13.06.20191.41 мб, pdf
- Проект договора участия в долевом строительстве, корпус 1 29.12.2018166.31 кб, pdf
- Информация о выданных заключениях о соответствии застройщика и проектной декларации требованиям 214-ФЗ 50-001552 00518-18ИСХ/ЗОСТ, корпус 1 02.10.2018736.75 кб, pdf
- Разрешение на строительство RU50-12-11090-2018, корпус 1 28.06.2018114.50 кб, pdf
- Экспертиза проектной документации, корпус 1 29.05.20189.86 мб, pdf
- Разрешение на ввод RU50-12-20549-2022, корпус 8 13.01.2022132.44 кб, pdf
- Проектная декларация № 50-003050, корпус 8 09.01.2022235.70 кб, pdf
- Извещение о начале строительства, корпус 8 21.01.20211.74 мб, pdf
- Проект договора участия в долевом строительстве, корпус 8 21.01.202150.21 кб, pdf
- Информация о выданных заключениях о соответствии застройщика и проектной декларации требованиям 214-ФЗ 50-003050 ЗОС/190/50-003050, корпус 8 19.01.2021741.64 кб, pdf
- Схема планировочной организации земельного участка, корпус 8 15.12.20202.32 мб, pdf
- Градостроительный план земельного участка, корпус 8 15.12.20205.29 мб, pdf
- Разрешение на строительство RU50-12-16414-2020, корпус 8 26.08.202067.66 кб, pdf
- Экспертиза проектной документации, корпус 8 15.04.2020642.39 кб, pdf
- Разрешение на ввод RU50-12-15242-2020, корпус Корпус 8 28.01.202068.48 кб, pdf
- Проектная декларация № 50-001552, корпус Корпус 8 13.01.2020194.60 кб, pdf
- Заключение о степени готовности RU50-12-11090-2018, корпус Корпус 8 05.07.2019943.48 кб, pdf
- Извещение о начале строительства, корпус Корпус 8 13.06.20191.41 мб, pdf
- Сведения об уплате застройщиком обязательных отчислений, корпус Корпус 8 13.06.201913.46 мб, pdf
- Схема планировочной организации земельного участка, корпус Корпус 8 13.06.20191.46 мб, pdf
- Градостроительный план земельного участка, корпус Корпус 8 13.06.20193.11 мб, pdf
- Проект договора участия в долевом строительстве, корпус Корпус 8 29.12.2018166.31 кб, pdf
- Информация о выданных заключениях о соответствии застройщика и проектной декларации требованиям 214-ФЗ 50-001552 00518-18ИСХ/ЗОСТ, корпус Корпус 8 02.10.2018736.75 кб, pdf
- Разрешение на строительство RU50-12-11090-2018, корпус Корпус 8 28.06.2018114.50 кб, pdf
- Экспертиза проектной документации, корпус Корпус 8 29.05.20189.86 мб, pdf

















