4+ Комнатная квартира, 108.2 м², ID 563881
Обновлено вчера
30 464 000 ₽
281 553 ₽ / м2
- Срок сдачи
- I квартал 2021
- Застройщик
- нет данных
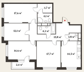
- Общая площадь
- 108.2 м2
- Жилая площадь
- 62 м2
- Площадь кухни
- 14.5 м2
- Высота потолков
- 3.28 м
- Этаж
- 1 из 6
- Корпус
- 2
- Отделка
- Черновая
- Санузел
- Раздельный
- ID
- 563881
Описание
4+ Комнатная квартира, 108.2 м2 в Миниполис 8 кленов от
Продается 4+ комн. квартира в новостройке Миниполис 8 кленов по цене 30 464 000 руб, расположенная по адресу Красногорск, мкр Опалиха, ул Новая Московская, двлд 49. Застройщик Сити – XXI век. Квартира сдается в 1 квартале 2021 года с черновой отделкой, в 24 минутах на машине от метро Волоколамская. Общая площадь квартиры - 108.2 кв. м. Этаж 1 из 6. ID квартиры на СтройкиРУ 563881, сообщите его когда будете звонить.
















